$550,000  
$550,000
Active - Land for sale
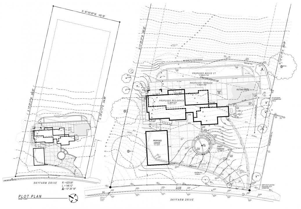
Amongst the rare estate lots left, this unique offering is positioned near the top of the highly desired Skyfarm Community, and provides far-reaching views. Sited high above Fountaingrove Golf Course, this picturesque lot provides incredible panoramic views of the Valley, Mountains, Green and Water below. For review are designs for a modern masterpiece (design review set), as well as a plan set for the original home, or bring your own creativity and design to this lot, amongst other customized options from local luxury homebuilders. This is a large and versatile lot, which has a substantial driveway with significant setback, and scope for a gate and estate-level of privacy.
Beycome ID: 16256140
- Listed by: Kevin Gioia • (804) 656-5007 • contact@beycome.com
- Brokered by: Beycome Brokerage Realty Inc. • (804) 656-5007
- Source: Beycome
- MLS Number: 16256140
- MLS Last Updated: Feb 6, 2026 at 06:20pm EST
* School data provided by National Center for Education Statistics, and GreatSchools. Intended for reference only. The GreatSchools Rating is based on a variety of school quality indicators, including test scores, college readiness, and equity data. To verify enrollment eligibility, contact the school or district directly.
What will my commute be?
Furnished: Unfurnished
Status: Active
Listed Date: 02/05/2026
Days On Market: 1
Lot Size (Acres): 1.14
Lot Size (Square Feet): 2.6170798898072E-5
Association Amenities: Frontyard, Lawn, Waterfront, Security
Building Name: Skyfarm
Utilities: 1
Parcel Number: 173-750-027-000

Schedule a tour
Request information