$420,000 $193/sf  
$420,000
$193.37/sf
Active - Single Family Residence for sale
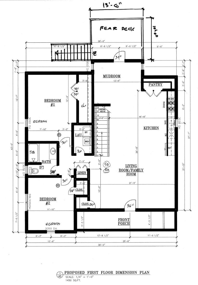
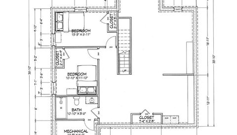
This mid-renovation property is your chance to step in and finish a home exactly the way you want it. With major improvements already underway, this home is bursting with potential and ready for your finishing touches. Property Highlights: • Spacious layout with endless design possibilities • Renovations already started – save time and jump straight to customization • Opportunity to choose your own finishes, colors, and upgrades • Generous lot with room for outdoor entertaining, landscaping, or expansion Whether you’re looking to create your dream home or your next profitable project, this property provides a rare opportunity to add value and bring your vision to life!
Beycome ID: 17078405
- Listed by: Steven Koleno • (804) 656-5007 • contact@beycome.com
- Brokered by: Beycome Brokerage Realty LLC • (804) 656-5007
- Source: Beycome
- MLS Number: 17078405
- MLS Last Updated: Feb 11, 2026 at 06:30pm EST
* School data provided by National Center for Education Statistics, and GreatSchools. Intended for reference only. The GreatSchools Rating is based on a variety of school quality indicators, including test scores, college readiness, and equity data. To verify enrollment eligibility, contact the school or district directly.
What will my commute be?
Furnished: Unfurnished
Status: Active
Listed Date: 02/10/2026
Days On Market: 1
Lot Size (Acres): 0.2
Lot Size (Square Feet): 4.5913682277319E-6
Year Built: 1954
Parcel Number: 14 017600150358

Schedule a tour
Request information