Listings courtesy of KW COASTAL LIVING III as distributed by MLS GRID.
$749,900 $596/sf Earn $14,998
$749,900
Credit Back up to $14,998*
$595.63/sf
Active - Condominium for sale
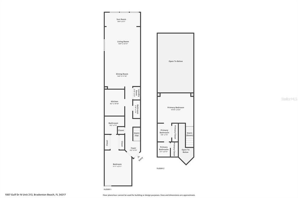
UNBELIEVABLE OPPORTUNITY FROM GULF TO BAY WITH BREATHTAKING BAY Views, 2 Bedroom /2.5 Bath, UPDATED & TURNKEY END Unit Condo with DIRECT BEACH ACCESS in the Highly Sought After Summer Sands Community! MONTHLY RENTALS!! Literally walk across the street to the beach and TIKI BAR! Golf CART through the entire Island!! Enjoy everything Bradenton Beach has to offer, walking distance to Historic Bridge Street, On Site Pool, Day Dock perfect for drop and load, daily access and of course all the Bay fishing your heart desires! Experience island living at its finest in this beautifully updated coastal-chic condo offering breathtaking panoramic Bay view's day or night and direct access to the stunning white sand Gulf beaches just across the street. Step inside to find an open living space that flows to a wall of windows overlooking the Bay, creating the perfect backdrop for morning coffee, evening cocktails or simply soaking in the beauty of island life. This desirable end unit offers extra windows that bathe the interior in beautiful natural light throughout the day. With 2 primary bedrooms you can choose whether the first level ensuite bedroom or the 2nd level loft style bedroom with ensuite is for you! Enjoy the convenience of a full-size washer and dryer, 2024 HVAC, shiplap ceiling, hurricane windows, updated kitchen and baths! Offered TURNKEY FURNISHED, the unit allows for an effortless, quick move-in and immediate enjoyment of island living. Perfectly positioned in one of the rare Gulf-to-Bay communities on Bradenton Beach, this residence delivers on the ultimate island lifestyle with deeded access to both the Gulf and the Intracoastal Waterway, plus a sparkling community pool and private dock for boating, kayaking, fishing or simply taking in the sunrise. Experience truly effortless living with two assigned covered parking spaces and easy elevator access. Summer Sands owns the vacant Gulf front parcel, which protects the unobstructed BEACH VIEWS of this fantastic complex. Located just a short stroll to the iconic Bridge Street, your moments from Anna Maria Island’s favorite restaurants, boutique shops, live entertainment and vibrant nightlife. Whether you’re searching for a full-time residence, seasonal escape or high-demand rental opportunity (monthly rentals 4x/yr), this location offers unmatched convenience and charm.
- Listed by: Melissa Killion • MKILLIONREALESTATE@GMAIL.COM
- Brokered by: KW COASTAL LIVING III • 941-900-4151
- Co-listed by: Laura Rode • Laura Rode
- Source: Stellar MLS as distributed by MLS GRID
- MLS Number: A4670788
- MLS Last Updated: Mar 27, 2026 at 05:44am EDT
* School data provided by National Center for Education Statistics, and GreatSchools. Intended for reference only. The GreatSchools Rating is based on a variety of school quality indicators, including test scores, college readiness, and equity data. To verify enrollment eligibility, contact the school or district directly.
What will my commute be?
Appliances: Dishwasher, Microwave, Range, Refrigerator
Community Features: Bay/Harbor Front, Dock, Water Access, Golf Carts Ok, Pool
Furnished: Furnished
Laundry Features: Laundry Closet
Lot Features: City Lot, Near Marina, Near Public Transit, Sidewalk
Number Of Lots: 1
Security Features: Key Card Entry
Waterfront: Bay/Harbor Front
Status: Active
Listed Date: 11/18/2025
Days On Market: 143
View: View Water
Rent Includes: []
Tenant Pays: []
Association Name: J. CONWAY
Association Amenities: Pool, Spa/Hot Tub
Pets Allowed: Breed Restrictions, Cats Ok, Size Limit
Carport Spaces: 2
Year Built: 1982
Construction Materials: Stucco
Cooling: Central Air
Exterior Features: Lighting, Outdoor Shower, Storage
Fireplace Features: Electric, Living Room
Flooring: Floor Carpet
Foundation Details: Foundation Slab
Heating: Central, Electric
Interior Features: Ceiling Fan(S), High Ceilings, Living Room/Dining Room Combo, Primary Bedroom Main Floor, Solid Surface Counters, Split Bedroom, Stone Counters, Vaulted Ceiling(S)
Pets Allowed: Breed Restrictions, Cats Ok, Size Limit
Electric: []
Sewer: Sewer Public Sewer
Utilities: Electricity Connected
WaterSource: Water Source Public
Parcel Number: 7703801303
Tax Legal Description: Unit 213 Summer Sands Condo Pi#77038.0130/3
Zoning: R3
Subdivision Name: Summer Sands
MLS Area Major: 34217 - Holmes Beach/Bradenton Beach
Elementary School: Anna Maria Elementary
Middle/Junior School: Martha B. King Middle
High School: Bayshore High

Schedule a tour
Request information