Listings courtesy of RE/MAX Suburban.
$450,000 $188/sf Earn $9,000
$450,000
Credit Back up to $9,000*
$188.13/sf
Active - Other for sale
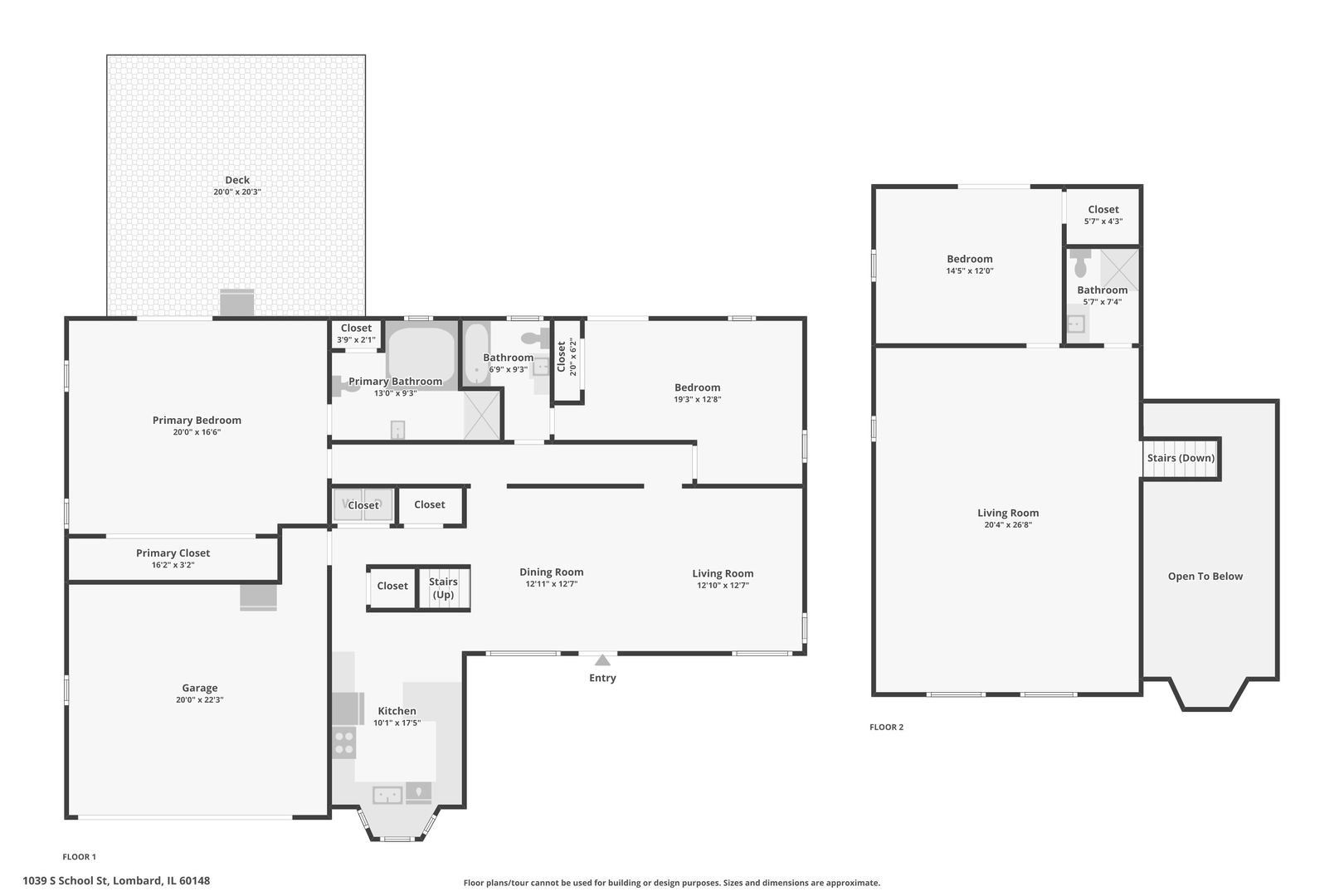
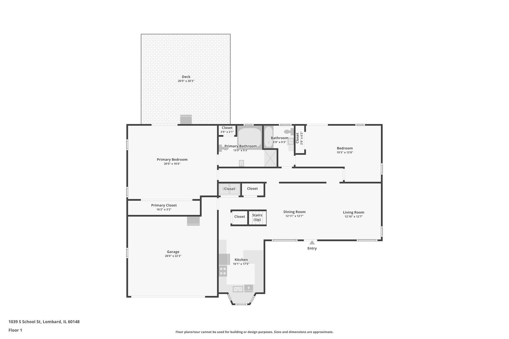
Situated on a spacious corner lot in Lombard, this 3-bedroom, 3-bath home offers a unique layout that is far from 'cookie cutter'. With just under 2400 sq ft, two bedrooms + two full baths on the main level, everyday living is easy and convenient. Upstairs, you walk up to a large family room - the perfect space for movie nights, playtime, or quiet evenings by the TV. You'll also find a third bedroom and full bath, along with a private balcony that's just waiting for your morning coffee moments. Step outside and imagine summer barbecues, backyard games, or cozy fall nights around a fire pit in the fully fenced yard. The deck offers plenty of room for entertaining, and the two-car garage keeps everything neat and protected from the seasons. While the home could use a few modern updates and personal touches, the bones are strong, the space is generous, and the possibilities are endless. Whether you're ready to move in and make it your own or see the potential for a stunning transformation, this home offers the best of both worlds - space, comfort, and a neighborhood that feels like home.Come see where your next chapter begins, right here in Lombard! Home needs some TLC & updating but has awesome potential - to be sold AS-IS.
- Listed by: Nicole Malatesta
- Brokered by: RE/MAX Suburban • 630-653-1900
- Co-listed by: Nicholas Malatesta • Nicholas Malatesta
- Co-Brokered by: RE/MAX Suburban • (630) 653-1900
- Listing updated: Oct 24, 2025 at 08:27pm
- Source: MRED as distributed by MLS GRID
- MLS Number: 12489307
* School data provided by National Center for Education Statistics, and GreatSchools. Intended for reference only. The GreatSchools Rating is based on a variety of school quality indicators, including test scores, college readiness, and equity data. To verify enrollment eligibility, contact the school or district directly.
What will my commute be?
Appliances: Range, Microwave, Dishwasher, Refrigerator, Washer, Dryer, Disposal, Stainless Steel Appliance(S)
Community Features: Park, Curbs, Sidewalks, Street Lights, Street Paved
Fencing: Fenced
Furnished: Unfurnished
Lot Features: Corner Lot
Status: Active
Listed Date: 10/15/2025
Days On Market: 9
Lot Size (Acres): 0.32
Lot Size (Square Feet): 13939.2
Garage Spaces: 2
Parking Total: 6
Year Built: 1953
Basement: Crawl Space
Construction Materials: Vinyl Siding, Brick
Cooling: Central Air
Exterior Features: Balcony
Foundation Details: Concrete Perimeter
Heating: Natural Gas, Forced Air
Interior Features: Vaulted Ceiling(S), 1st Floor Bedroom, In-Law Floorplan, 1st Floor Full Bath
Roof: Asphalt
Window Features: Skylight(S)
Sewer: Public Sewer
WaterSource: Public
Parcel Number: 0616303009
Elementary School: Westmore Elementary School
Middle/Junior School: Jackson Middle School
High School: Willowbrook High School

Schedule a tour
Request information