Listings courtesy of Keller Williams ONEChicago as distributed by MLS GRID.
$199,900 Earn $3,998
$199,900
Credit Back up to $3,998*
Active - Other for sale
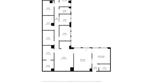
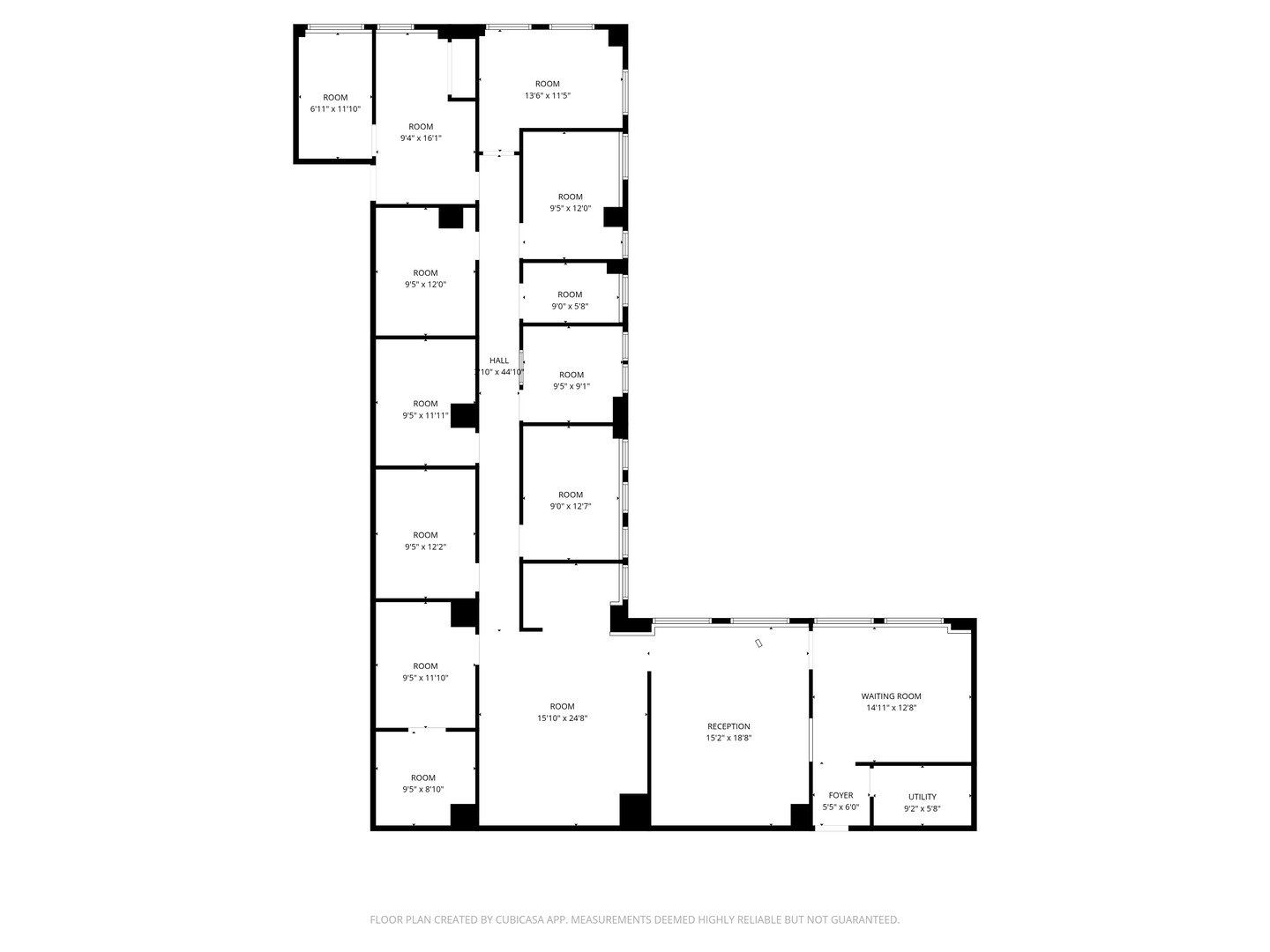
Position your business in the heart of Downtown Chicago with this 2,800 SF commercial condominium located on the 16th floor of the iconic Garland Building at 111 N. Wabash Avenue. Built in 1917, this architecturally significant property blends historic character with modern functionality, offering a professional environment ideal for medical, office, or research users. The flexible floor plan allows for a variety of configurations, whether you are seeking a medical suite, legal office, creative workspace, or financial services operation. The space benefits from central HVAC, wet sprinkler system, separate electrical meters, and access to central building services. Offered as a commercial condo, this opportunity provides long-term control of occupancy in one of Chicago's most recognized business corridors. The B-2 zoning supports a wide range of office and commercial uses, making it well suited for owner-users or professional practices seeking a permanent Downtown presence.
- Listed by: David Piotrowski
- Brokered by: Keller Williams ONEChicago • 312-216-2422
- Source: MRED as distributed by MLS GRID
- MLS Number: 12591525
- MLS Last Updated: Mar 26, 2026 at 06:42pm EDT
* School data provided by National Center for Education Statistics, and GreatSchools. Intended for reference only. The GreatSchools Rating is based on a variety of school quality indicators, including test scores, college readiness, and equity data. To verify enrollment eligibility, contact the school or district directly.
What will my commute be?
Current Use: Medical/Dental
Furnished: Unfurnished
Status: Active
Listed Date: 03/12/2026
Days On Market: 24
Lot Size (Square Feet): 15876
Year Built: 1917
Construction Materials: Brick, Glass, Stone
Cooling: Central Air
Parcel Number: 17103090161113
Zoning: Offic

Schedule a tour
Request information