Available when you are
Just let us know what’s on your mind and we’ll get back to you faster than you can say "No commission"!
Get In Touch
5701 Sunset Dr #224,
South Miami, FL 33143
Welcome back to beycome
We have sent a login code to Johndoe@gmail.com
We also sent it by sms to 804-656-5007
Please enter the OTP login code below
1148 N Grandview St, Mount Dora, FL 32757
5 beds 4 baths 2,479 Sqft
$625,000 $252/sf  
$625,000
$252.12/sf
Active - Single Family Residence for sale
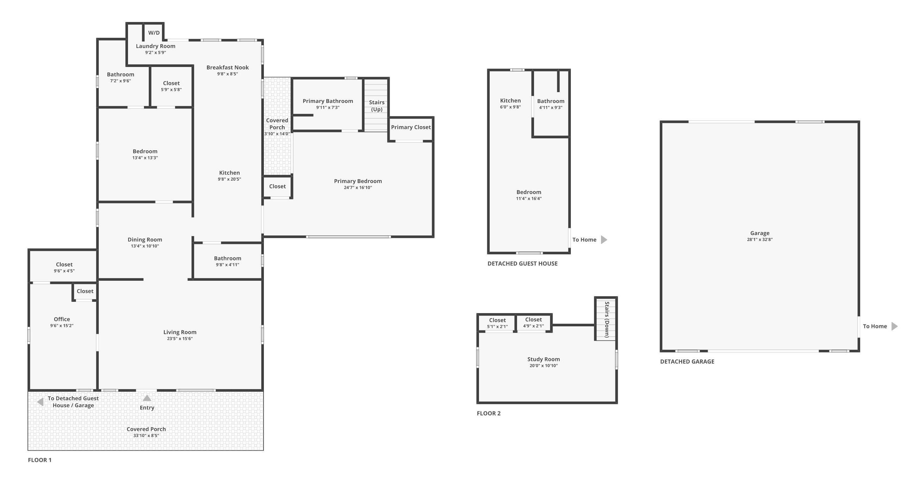
Located in the heart of Downtown Mount Dora’s coveted Historic District, the Atterberry/Owens House at 1148 Grandview St is a rare offering that combines historic charm, income potential, and future upside—all on an expansive 0.56-acre fully fenced triple lot with gated access, just steps from shops, dining, and the lakefront. Built in 1926, this unique property features three separate structures totaling approximately 2,479 square feet, creating flexibility that is nearly impossible to find in this submarket. The main home: • 4 bedrooms, 3 bathrooms • A welcoming front porch that captures the essence of historic Mount Dora • A versatile loft above the primary suite with closets—ideal as a 4th bedroom, office, or flex space • Move-in ready condition with a long-lasting metal roof The detached 1 bed / 1 bath ADU is fully equipped with its own A/C, kitchen, and full bath— for: • rental (Airbnb) income • Long-term rental or duplex-style living • Guest house or private in-law suite A detached 2-car garage with power adds even more value, providing space for storage, a workshop, or future conversion potential. Situated on a rare triple lot with mature mango and avocado trees, this property delivers both immediate usability and long-term upside—with no HOA restrictions. Whether you’re looking for a primary residence, income-producing property, or multi-generational living setup, this is a one-of-a-kind opportunity in one of Central Florida’s most desirable historic communities.
Beycome ID: 17089143
- Listed by: Steven Koleno • (804) 656-5007 • contact@beycome.com
- Brokered by: Beycome of Florida LLC • (804) 656-5007
- Source: Beycome
- MLS Number: O6396579
- MLS Last Updated: Apr 6, 2026 at 04:45pm EDT
* School data provided by National Center for Education Statistics, and GreatSchools. Intended for reference only. The GreatSchools Rating is based on a variety of school quality indicators, including test scores, college readiness, and equity data. To verify enrollment eligibility, contact the school or district directly.
What will my commute be?
Furnished: Unfurnished
Status: Active
Listed Date: 04/05/2026
Days On Market: 1
Lot Size (Acres): 0.59
Lot Size (Square Feet): 25700.4
Year Built: 1926
Parcel Number: 29-19-27-1300-000-00701
•••
•••
•••
••••
Buy with beycome and get up to
$12.5K Credit Back*
*Estimated beycome credit amount varies by closing price, commission offered and is not available in certain areas or where prohibited by law.
•••••
•••••

Purchase price $625,000
$410K$845K
Mortgage All cash
Monthly expenses $5,041
Mortgage 6.5% $3,832
210
Property Tax $1,042
HOA Fee $0
Homeowners Insurance $167
Due at Close $615,625
Minimum down payment 3% $18,750
090
List price $625,000
Closing costs $9,375
beycome Pre-paid title: $99Discover Title Services
beycome Credit Est. $0
•••
•••
•••
••••
Also selling a home? We can help with that too.
Save money, time and stress.
$99, $399 and $1,399 True Flat fee.
•••••
•••••
Based on information as of Apr 6, 2026 at 04:45pm EDT.
I see you have great taste! By following this listing, you will be the first to know when there are price changes, a change of status, and the next open house.
This listing is now in your collection, now let's get out there and find you some more favorites!
By clicking the link below you're leaving beycome's website and will be sent to the website of Better Mortgage Corporation (NMLS #330511).
Schedule a tour
Request information
Share this listing
Share Listing
Owner:
Phone: 844-799-7886 #BEYC17089143
By pressing Send message you agree that beycome may call/text/email you about your inquiry. You don't need to consent as a condition of buying any property, goods or services & you also agree to our Terms of use.
Owner:
Phone: 844-799-7886
Staying safe during COVID-19
In-person tours may not currently allow for safe social distancing or comply with public health orders. We also can't offer in-person tours to people with cold or flu symptoms.
beycome encourages live video-chat tours.
By pressing "Send request" you agree to beycome's Terms & Conditions and agree that beycome Corp. and its affiliates may call/text you about your inquiry and could be representing you as a limited agent. See agreement. You don't need to consent as a condition of buying or selling any property, goods, or services. Message/data rates may apply.
Available when you are
Just let us know what’s on your mind and we’ll get back to you faster than you can say
"No commission"!
FEATURES
RESOURCES
CONTACT
5701 Sunset Drive #224, South Miami, FL 33143
Phone: 804-656-5007
Email: contact@beycome.com
Monday to Friday - 8:30am - 6:30pm EST
Saturday - 9am - 5pm EST
Agreement to Terms and Privacy Policy: By using beycome.com, you agree to our Terms and Conditions and our Privacy Policy.
Legal Disclaimer: Information is current as of May 14, 2024. Beycome Corp. may modify or discontinue products and benefits without notice. Eligibility and underwriting requirements must be met. No guarantee, warranty, or representation of any kind is made regarding the completeness or accuracy of descriptions or measurements (including square footage measurements and property condition); such should be independently verified, and Beycome expressly disclaims any liability in connection therewith.
Trademark Notice: Logos and trademarks on our website are used to illustrate industry partnerships and do not imply endorsement unless explicitly stated. All trademarks belong to their respective owners, and we comply with trademark laws.
Beycome Family of Companies: Beycome Mortgage LLC provides home loans; Beycome Brokerage Realty LLC, Beycome Brokerage Realty Inc., and Beycome of Florida LLC provide real estate services; Beycome Title of Florida LLC provides title insurance services. These are separate entities under Beycome Corp., each governed by its own management as required by law, but all owned by the same individuals, forming a business relationship.
Beycome Corp. holds real estate brokerage licenses in Multiple States: Beycome of Florida LLC is licensed in FL. Beycome Brokerage Realty Inc is licensed in CA. Beycome of Connecticut in CT. Beycome Brokerage Realty LLC is licensed in AL, GA, IL, IN, MI, MN, NC, OH, SC, TN, TX and VA.
CalDRE #01804683
TREC: Brokerage Services, Consumer Protection Notice
IDX© information is provided exclusively for consumers’ personal, non-commercial use. It may not be used for any purpose other than to identify prospective properties consumers may be interested in purchasing. Information deemed reliable but not guaranteed to be accurate.
Listings Information: Listings information is updated daily. All information provided is deemed reliable but is not guaranteed accurate and should be independently verified.
Broker Compensation is fully negotiable and is not fixed, controlled, recommended, or suggested by law or any multiple listing service or association of REALTORS®.
Beycome fully supports the Equal Housing Opportunity laws.
All rights reserved, Copyright 2026 beycome™ | Made with passion in the USA.