$1,795,000  
$1,795,000
Active - Land for sale
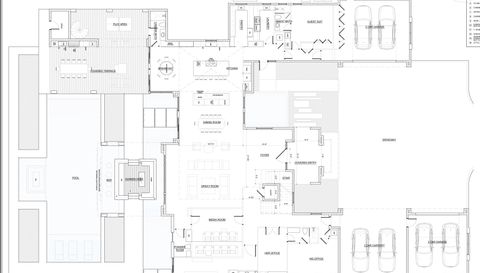
Build your dream mansion on the final vacant homesite in Stonebrook Estates, a guard-gated luxury community spanning 136 acres. This oversized 1.66-acre corner waterfront lot is the largest in the neighborhood. HOA-approved architectural plans are included for a two-story estate with 8,094 SF under air (13,902 SF total), with elevator, 6 bedrooms, 8 baths home theater, gym or 7th bedroom, laundry on both floors, resort-style pool with sunken lounge and bar, covered outdoor kitchen, sports courts, private soccer field, minigolf and six covered parking spaces or you can design your own home. Soil test and survey completed. Community amenities include clubhouse, fitness center, tennis, pickleball, basketball, volleyball courts, walking paths, and playground.
Beycome ID: 17076156
- Listed by: Steven Koleno • (804) 656-5007 • contact@beycome.com
- Brokered by: Beycome of Florida LLC • (804) 656-5007
- Source: Beycome
- MLS Number: A11948979
- MLS Last Updated: Mar 18, 2026 at 10:55am EDT
* School data provided by National Center for Education Statistics, and GreatSchools. Intended for reference only. The GreatSchools Rating is based on a variety of school quality indicators, including test scores, college readiness, and equity data. To verify enrollment eligibility, contact the school or district directly.
What will my commute be?
Furnished: Unfurnished
Status: Active
Listed Date: 01/19/2026
Days On Market: 58
Lot Size (Acres): 1.66
Lot Size (Square Feet): 3.8108356290174E-5
Parcel Number: 504023091290

Schedule a tour
Request information