Listings courtesy of REAL BROKER, LLC as distributed by MLS GRID.
$1,999,999 $427/sf Earn $40,000
$1,999,999
Credit Back up to $40,000*
$427.35/sf
Active - Multi Family for sale
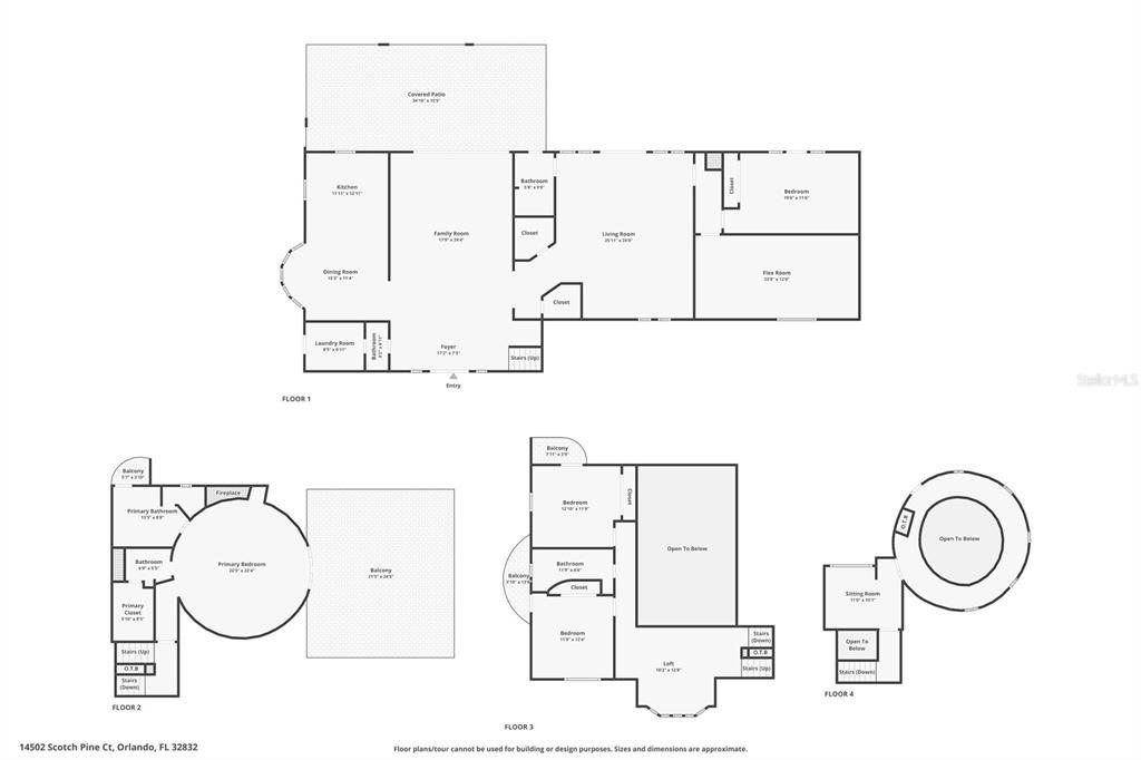
Set behind a gated entrance on 10 private acres in the sought after Lake Mary Jane area, this unforgettable castle estate is one of Central Florida’s rarest offerings. With 5 bedrooms, 3 full baths, 1 half bath, and 4,680 square feet of living space, the property blends striking architecture, expansive grounds, and a truly unique multi level layout into an experience that feels worlds away, yet remains within Orlando. From the moment you arrive, the circular drive, turrets, stone inspired façade, and walled entry create a dramatic sense of arrival. Inside, the home opens to a breathtaking foyer and family room with soaring ceilings, statement chandeliers, a grand fireplace, gothic inspired windows and doors, and an upper level overlook that instantly sets this home apart. The kitchen and dining area balance charm and function with extensive cabinetry, stone counters, stainless steel appliances, a gas range, and a bright bay window dining nook with peaceful views of the property. A separate first floor living room adds even more character with exposed wood beams, gothic style doors and windows, and seamless access to the outdoor living area. Nearby, a beautifully updated full bath features custom wood finishes, a vessel sink, and a walk in shower. Also on the main level, a spacious bedroom and separate flex room provide exceptional versatility for guests, multigenerational living, a private office, gym, or media space. The entire second level is dedicated to a remarkable primary suite unlike anything you see every day, featuring a dramatic round design, fireplace, private balcony, walk in closet, separate vanity area, and spacious bath with walk in shower. Above, a private upper level retreat within the suite adds even more character and can serve as a sitting room, reading nook, or secluded escape. The third level offers two additional bedrooms, each with its own Juliet balcony, along with a full bath and a versatile loft overlooking the grand foyer below. Outside, the lifestyle continues with an expansive covered lanai that feels like an outdoor great room, complete with castle inspired arches and generous room for lounging and entertaining. The resort style pool and spa create a spectacular backyard setting with a freeform design, beach entry, waterfall feature, stone accents, and an oversized paver deck surrounded by peaceful natural beauty. Zoned for horses and set on an extraordinary 10 acre homesite, this is more than a home, it is a private estate with storybook presence and unforgettable style.
- Listed by: Peter Luu • peter.luu@peterluu.com
- Brokered by: REAL BROKER, LLC • 855-450-0442
- Co-listed by: Kathleen Schelvan • Kathleen Schelvan
- Source: Stellar MLS as distributed by MLS GRID
- MLS Number: O6391745
- MLS Last Updated: Mar 27, 2026 at 05:44am EDT
* School data provided by National Center for Education Statistics, and GreatSchools. Intended for reference only. The GreatSchools Rating is based on a variety of school quality indicators, including test scores, college readiness, and equity data. To verify enrollment eligibility, contact the school or district directly.
What will my commute be?
Appliances: Dishwasher, Disposal, Dryer, Electric Water Heater, Microwave, Range, Refrigerator, Washer
Community Features: Dock, Water Access, Stable(S)
Fencing: Fencing Fenced
Furnished: Negotiable
Laundry Features: Inside
Lot Features: Cul-De-Sac, In County, Landscaped, Level, Oversized Lot, Zoned For Horses
Number Of Lots: 1
Pool Features: Pool Deck, Pool Heated, Pool Indoor, Pool Lighting, Pool Salt Water
Spa Features: Heated, In Ground
Status: Active
Listed Date: 03/17/2026
Days On Market: 27
Lot Size (Square Feet): 435753
View: View Pool, View Trees/Woods
Rent Includes: []
Tenant Pays: []
Association Name: Isle of Pines
Association Amenities: Stable(S)
Pets Allowed: Yes
Architectural Style: Custom
Parking Total: 1
Year Built: 1991
Construction Materials: Block, Stucco, Wood Frame
Cooling: Central Air
Exterior Features: Irrigation System
Fireplace Features: Gas, Living Room, Master Bedroom, Wood Burning
Flooring: Floor Carpet, Floor Ceramic Tile, Floor Engineered Hardwood, Hardwood Floor
Foundation Details: Foundation Slab
Heating: Electric
Interior Features: Built-In Features, Cathedral Ceiling(S), Ceiling Fan(S), Chair Rail, Crown Molding, Eating Space In Kitchen, High Ceilings, Primarybedroom Upstairs, Solid Wood Cabinets, Split Bedroom, Stone Counters, Vaulted Ceiling(S), Walk-In Closet(S)
Other Structures: Shed(S), Workshop
Roof: Roof Shingle
Pets Allowed: Yes
Electric: []
Sewer: Sewer Septic Tank
Utilities: Electricity Connected
WaterSource: Water Source Well
Parcel Number: 252431424600400
Tax Legal Description: Lake And Pines Estates 12/35 Lot 40
Zoning: R-Ce-2
Subdivision Name: Lake And Pines Estates
MLS Area Major: 32832 - Orlando/Moss Park/Lake Mary Jane
Elementary School: Moss Park Elementary
Middle/Junior School: Innovation Middle School
High School: Lake Nona High

Schedule a tour
Request information