Closing price $180,000
House
For Sale
Sold: $180,000
Last sale: 01/30/2026
Source: Public Record
Closed
Closed - House for sale
Note: This property is not currently for sale or for rent on beycome. The description below may be from a previous listing.
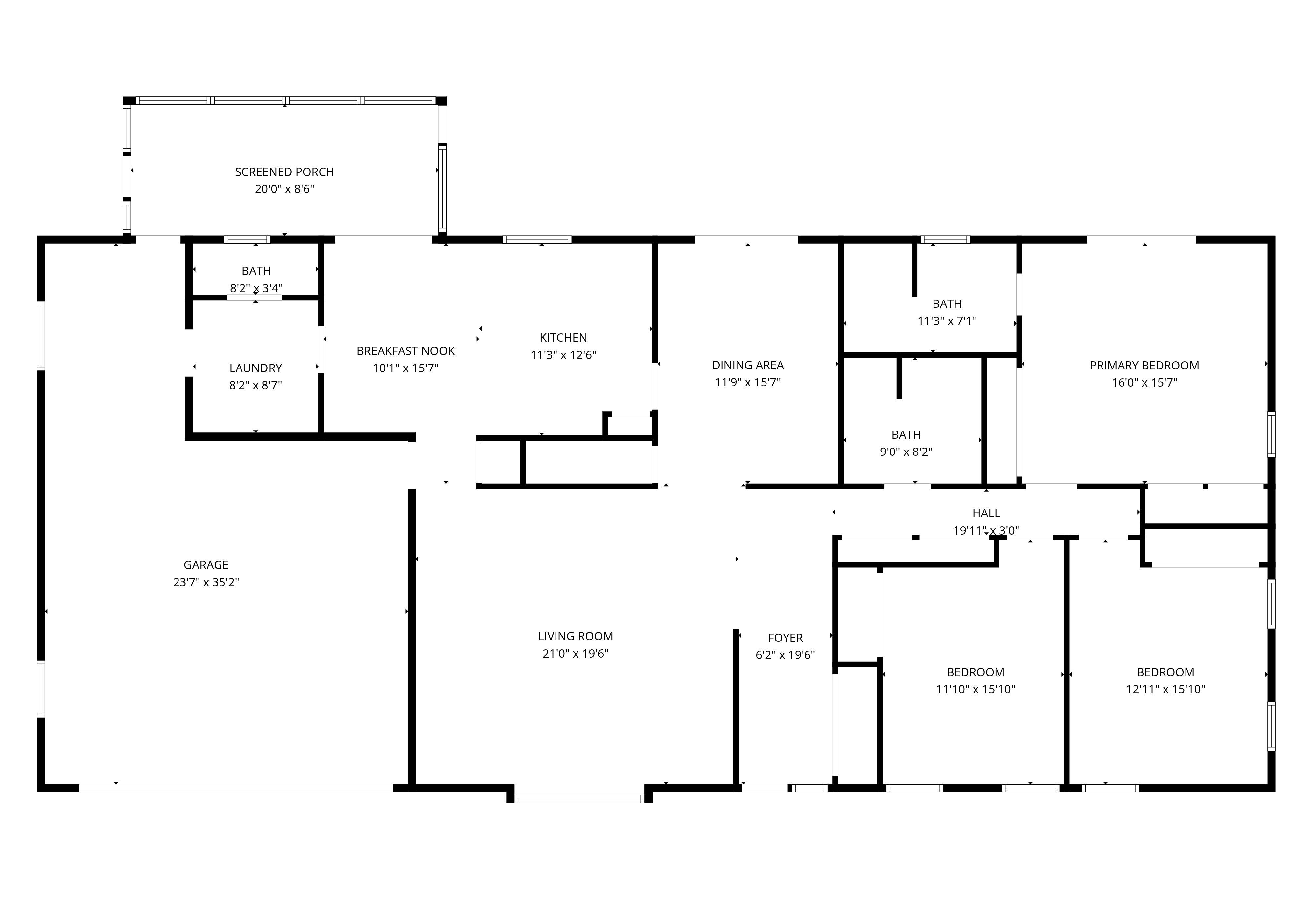
Marion County Fixer-Upper on Solid Concrete Block Unlock the potential of this solid single-family home on a spacious 0.43-acre lot. This fixer-upper suits real estate investors, fix-and-flippers, or handy homeowners ready to roll up their sleeves and build instant equity. The home includes 3 bedrooms, 2.5 bathrooms, an attached 2-car garage, and a screened porch. With strong concrete block construction and generous square footage, there’s plenty of room to rework the layout, update finishes, or convert the property into a high-performing rental or resale project. Being sold AS-IS, it’s ready for customization and upgrades. LOCATION HIGHLIGHTS: Minutes from Lake Weir — great for kayaking, fishing, paddleboarding, or relaxing by the water Close to Rolling Acres Park, local playgrounds, and open green space Convenient access to Summerfield Plaza, shopping centers, schools, museums, and daily essentials Near local markets, flea markets, and small vendors that create a strong community feel Whether you’re searching for your next renovation project or a home with solid bones in a sought-after area, this property delivers long-term potential and flexibility.
Beycome ID: 17073927
* School data provided by National Center for Education Statistics, and GreatSchools. Intended for reference only. The GreatSchools Rating is based on a variety of school quality indicators, including test scores, college readiness, and equity data. To verify enrollment eligibility, contact the school or district directly.
What will my commute be?
Status: Closed
Listed Date: 01/03/2026
Days On Market: 67
Lot Size (Acres): 0.43
Lot Size (Square Feet): 18730.8
Closing Price: $180,000
Closing Date: 01/30/2026
