$459,999 $159/sf  
$459,999
$159.17/sf
Active - Single Family Residence for sale
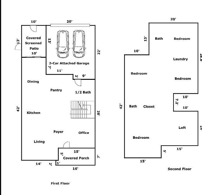
Welcome to 1719 Flourish Ave.! This charming home in Kissimmee provides a delightful blend of comfort and style. Featuring spacious living areas, a modern kitchen with sleek appliances, and a serene fenced-in backyard and enclosed lanai great for relaxation. With its convenient location, you'll enjoy easy access to local amenities and attractions. Experience the warmth and character of this lovely property. Don't miss the opportunity to make this house your next home! Tenant-occupied and generating $2900/month in rental income. The lease expires February 28, 2026. Prime for investors seeking immediate cash flow or for future owner-occupants planning ahead and willing to honor the lease term (unless otherwise negotiated).
Beycome ID: 17079851
- Listed by: Steven Koleno • (804) 656-5007 • contact@beycome.com
- Brokered by: Beycome of Florida LLC • (804) 656-5007
- Source: Beycome
- MLS Number: 17079851
- MLS Last Updated: Feb 15, 2026 at 06:25pm EST
* School data provided by National Center for Education Statistics, and GreatSchools. Intended for reference only. The GreatSchools Rating is based on a variety of school quality indicators, including test scores, college readiness, and equity data. To verify enrollment eligibility, contact the school or district directly.
What will my commute be?
Furnished: Unfurnished
Status: Active
Listed Date: 02/14/2026
Days On Market: 1
Lot Size (Acres): 0.16
Lot Size (Square Feet): 3.6730945821855E-6
Year Built: 2021
Parcel Number: 052630534100010110

Schedule a tour
Request information