Listings courtesy of FUTURE HOME REALTY INC as distributed by MLS GRID.
$1,695,500 $338/sf Earn $33,910
$1,695,500
Credit Back up to $33,910*
$337.61/sf
Active - Multi Family for sale
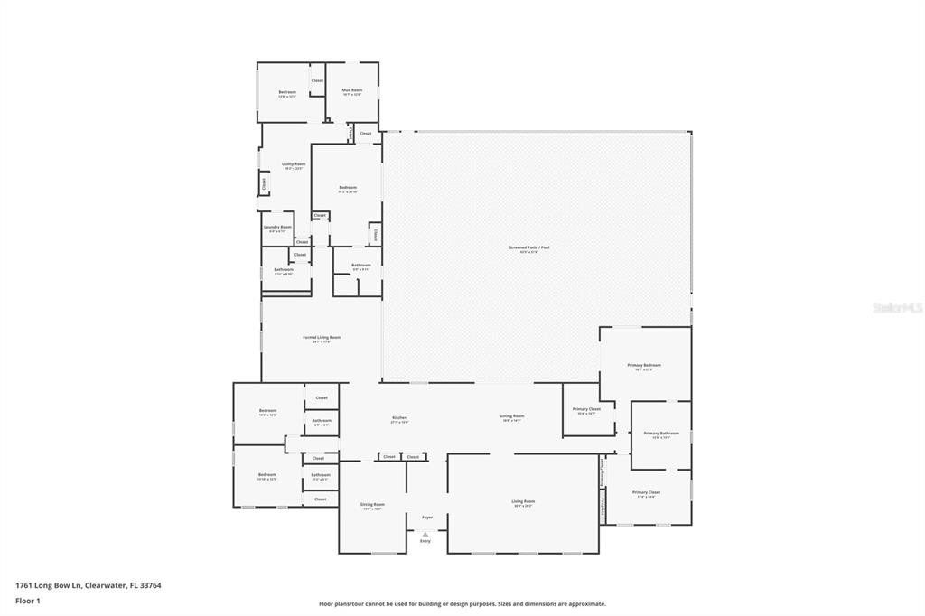
New roof installed!! Discover the freedom of total autonomy at 1761 Long Bow Lane, a rare 1.8-acre sanctuary in the heart of Clearwater. Offering a secluded "country feel" with no HOA restrictions, this sprawling estate provides unmatched privacy just minutes from the upscale dining of Belleair and the Gulf’s finest beaches. The grounds are designed for an active outdoor lifestyle, featuring a private, full-sized tennis court and a massive screen enclosure with an expansive pool. Backing directly onto a serene pond, the lush acreage offers a level of seclusion that is hard to find in Pinellas County. With nearly two acres of land and no restrictive rules, the possibilities are endless—add a detached guest house, a collector's garage, or your own private garden. Inside, the home has been elegantly reimagined with a designer chef’s kitchen featuring bespoke cabinetry and high-end stainless steel appliances. While the primary renovations are complete, the home offers a unique opportunity to add your signature finishing touches, allowing you to build instant equity and customize the space to your exact taste. Zoned for well-regarded schools, including the acclaimed IB program at Largo High, this is a premier opportunity to secure a significant land holding and a custom-tailored lifestyle.
- Listed by: Jason Duraj Pa • jason.duraj@gmail.com
- Brokered by: FUTURE HOME REALTY INC • 813-855-4982
- Source: Stellar MLS as distributed by MLS GRID
- MLS Number: TB8468064
- MLS Last Updated: Mar 27, 2026 at 05:44am EDT
* School data provided by National Center for Education Statistics, and GreatSchools. Intended for reference only. The GreatSchools Rating is based on a variety of school quality indicators, including test scores, college readiness, and equity data. To verify enrollment eligibility, contact the school or district directly.
What will my commute be?
Appliances: Cooktop, Dishwasher, Disposal, Dryer, Electric Water Heater, Freezer, Microwave, Refrigerator
Furnished: Unfurnished
Laundry Features: Inside
Number Of Lots: 1
Pool Features: Pool Gunite, Pool In Ground
Status: Active
Listed Date: 01/23/2026
Days On Market: 72
Lot Size (Square Feet): 73629
Rent Includes: []
Tenant Pays: []
Garage Spaces: 3
Parking Total: 1
Year Built: 1962
Construction Materials: Block, Brick
Cooling: Central Air
Exterior Features: Dog Run, Hurricane Shutters, Irrigation System, Lighting, Private Mailbox, Rain Gutters, Sliding Doors, Tennis Court(S)
Fireplace Features: Family Room, Wood Burning
Flooring: Floor Carpet, Floor Ceramic Tile, Floor Marble
Foundation Details: Foundation Slab
Heating: Baseboard
Interior Features: Ceiling Fan(S), Crown Molding, Eating Space In Kitchen, High Ceilings, Open Floorplan, Solid Surface Counters, Split Bedroom, Stone Counters, Walk-In Closet(S)
Other Structures: Kennel/Dog Run, Tennis Court(S)
Roof: Roof Slate
Pets Allowed: Yes
Electric: []
Sewer: Sewer Public Sewer
Utilities: Bb/Hs Internet Available, Cable Available, Electricity Connected, Phone Available, Sewer Connected, Street Lights, Water Connected
WaterSource: Water Source Public
Parcel Number: 252915807120000060
Tax Legal Description: Sherwood Manor Lot 6
Subdivision Name: Sherwood Manor
MLS Area Major: 33764 - Clearwater

Schedule a tour
Request information