Listings courtesy of HD REALTY LLC.
$839,900 $389/sf Earn $16,798
$839,900
Credit Back up to $16,798*
$389.02/sf
Active - Multi Family for sale
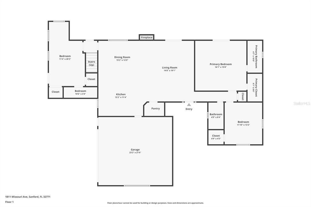
Spacious Waterfront 4BR/3BA with In-Law Suite & Dock – Prime Sanford Location! This beautifully updated 4-bedroom, 3-bath home sits on a rare half-acre lot-and-a-half with direct canal access to the St Johns River, featuring a concrete seawall, private boat dock with boat lift, double jet ski lift, and ample space to relax by the water. The 2019 addition offers flexible living options: use it as a private in-law suite with its own entrance, or as a home office or studio with separate access from the main house. The home features hurricane-impact windows and doors, a durable metal roof, and upscale interior touches like crown molding and designer finishes typically found in luxury homes. Poured concrete safe room/panic room. Enjoy the spacious screened-in porch, perfect for entertaining or peaceful mornings overlooking the water. The property also boasts plenty of parking, mature landscaping, and room to roam—larger than most lots in the neighborhood. 30 Amp RV parking spot on the side of the house. Conveniently located just minutes from I-4 and the 417/Greenway, you're close to shopping, dining, and everything Central Florida has to offer. Nestled in Sanford, this location is perfectly positioned between Orlando and Daytona, offering the best of both worlds. Don’t miss this versatile, upgraded home with waterfront living and room to grow!
- Listed by: Andy Tolbert • andy@andytolbert.com
- Brokered by: HD REALTY LLC • 407-260-8800
- Listing updated: Oct 16, 2025 at 09:25pm
- Source: Stellar MLS as distributed by MLS GRID
- MLS Number: O6320509
* School data provided by National Center for Education Statistics, and GreatSchools. Intended for reference only. The GreatSchools Rating is based on a variety of school quality indicators, including test scores, college readiness, and equity data. To verify enrollment eligibility, contact the school or district directly.
What will my commute be?
Appliances: Dishwasher, Electric Water Heater, Microwave
Furnished: Unfurnished
Laundry Features: In Garage
Lot Features: Cul-De-Sac, Flood Insurance Required, Floodzone, In County, Landscaped, Level, Near Marina, Oversized Lot, Street Dead-End, Unincorporated
Number Of Lots: 1
Security Features: Security System, Smoke Detector(S)
Waterfront: Canal - Freshwater, Canal Front
Status: Active
Listed Date: 06/19/2025
Days On Market: 131
Lot Size (Square Feet): 21981
View: View Trees/Woods, View Water
Rent Includes: []
Tenant Pays: []
Garage Spaces: 2
Parking Total: 1
Year Built: 1979
Construction Materials: Block, Hardiplank Type, Stucco
Cooling: Central Air, Mini-Split Unit(S), Zoned
Exterior Features: French Doors, Irrigation System, Lighting, Private Mailbox, Storage
Fireplace Features: Living Room, Non Wood Burning, Ventless
Flooring: Floor Carpet, Floor Ceramic Tile, Floor Luxury Vinyl, Floor Tile, Floor Vinyl
Foundation Details: Foundation Slab
Heating: Central, Electric, Wall Units / Window Unit, Zoned
Interior Features: Ceiling Fan(S), Crown Molding, Eating Space In Kitchen, Kitchen/Family Room Combo, Open Floorplan, Primary Bedroom Main Floor, Solid Wood Cabinets, Split Bedroom, Stone Counters, Thermostat, Walk-In Closet(S), Window Treatments
Other Structures: Boat House, Shed(S)
Property Condition: Property Condition Completed
Roof: Roof Metal
Window Features: Windows Double Pane Windows, Windows Storm Window(S), Windows Window Treatments
Electric: []
Sewer: Sewer Septic Tank
Utilities: Bb/Hs Internet Available, Cable Connected, Electricity Connected, Fiber Optics, Public, Sprinkler Well, Street Lights, Water Connected
WaterSource: Water Source Well
Parcel Number: 1719305010c000060
Tax Legal Description: S 1/2 Lot 6 + All Lot 7 Blk C St Johns River Estates Pb 13 Pg 54
Zoning: R-1aa
Subdivision Name: St Johns River Estates
MLS Area Major: 32771 - Sanford/Lake Forest

Schedule a tour
Request information