$849,000 $653/sf Earn $16,980
$849,000
Credit Back up to $16,980*
$653.08/sf
Active - Stock Cooperative for sale
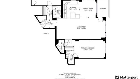
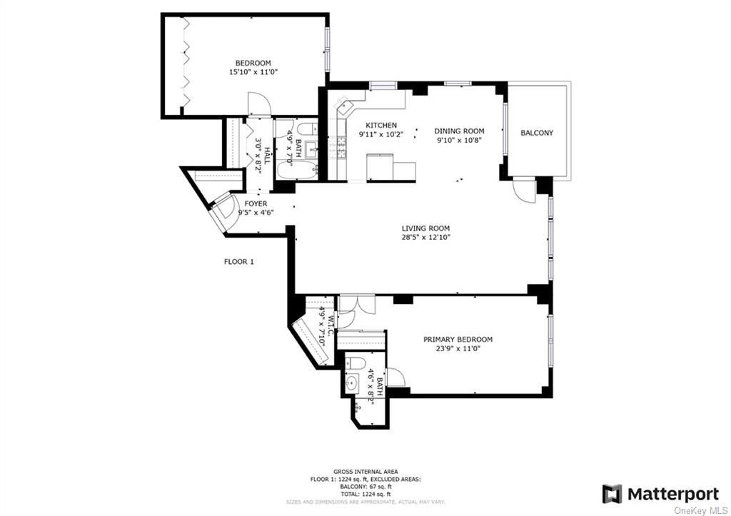
WATER VIEWS & PERFECTION! Bask in sunlight with East, South and western exposures This Is a rare find with views of the Palisades, Hudson River and the GWB here in Spuyten Duyvil. Nestled on the edge of the Hudson cradled by trees, This midcentury modern building offering of a custom designed split 2 bedroom 2 full bath apartment can be converted to 3 bedroom or an office to work from home with views of the Hudson River, Palisades and George Washington Bridge from all the rooms, checks all boxes. Experience the vista from the Terrace and from one end of the apartment to the other!!!. Enter this generous Foyer where this high end renovated apartment is designed with Rich wood floor finishes through, featuring a beautiful large windowed open kitchen with high end appliances, custom shaker white cabinets, stone countertops with tiled backsplash, stainless steel stove, 2 door refrigerator with water dispenser and stainless steel dishwasher . The split bedrooms are generous with an en suite main bedroom with a large custom walk in closet and spa bathroom with a shower. A large second BR with a custom closet & renovated bath with a tub is for the guests as well The Terrace is finished with wood tiled decking and is a wonderful respite to toast the sunsets and watch the seasons change. River Terrace is one of the most sought after full service coops in Riverdale where the maintenance includes electric, gas, central air, cable hi speed internet, heated seasonal pool. The building offers Indoor and outdoor parking, storage and a new gym is in the planning. Local and express buses and Metro North nearby. You have arrived. Home to parks and playgrounds, near Wave Hill, Riverdale park, the finest public and private schools, and houses of worship nearby. A seasonal heated pool with BBQ area, A/C, cable, internet, water, real estate taxes, 24 hour DM, live in super all included in the maintenance! Amenities offered at additional cost: storage bins, bike storage as well as indoor/outdoor parking when available FOR ADDITIONAL FEE. A very well maintained coop, considered to be one of the most desired luxury coops in Riverdale. Near the Metro North Spuyten Duyvil train station. Local buses to the 1, 4 & A trains and express buses to Manhattan are nearby as well. Fuel surcharge $53.68/mo.
- Listed by: Sandhya Tidke • stidke@bhsusa.com
- Brokered by: Brown Harris Stevens • 718-878-1700
- Co-listed by: Scott J. Kriger • Scott J. Kriger
- MLS Number: H6268907
- MLS Last Updated: Oct 19, 2023 at 08:35pm EDT
* School data provided by National Center for Education Statistics, and GreatSchools. Intended for reference only. The GreatSchools Rating is based on a variety of school quality indicators, including test scores, college readiness, and equity data. To verify enrollment eligibility, contact the school or district directly.
What will my commute be?
Furnished: Unfurnished
Status: Active
Listed Date: 09/25/2023
Days On Market: 922
Association Fee2: $1,749
Pets Allowed: Call
Architectural Style: High Rise
Year Built: 1982
Basement: Basement Full
Cooling: Cooling Central Air
Heating: Heating Natural Gas, Heating Heat Pump
Association Fee2: $1,749
Pets Allowed: Call
Sewer: Public Sewer
WaterSource: Public
Subdivision Name: Riverdale
MLS Area Minor: 99
Elementary School: Call Listing Agent
Elementary School District: City of New York
Middle/Junior School: Call Listing Agent
Middle/Junior School District: City of New York
High School: Call Listing Agent
High School District: City of New York

Schedule a tour
Request information