Listings courtesy of NAI Ruhl Commercial Company as distributed by MLS GRID.
$0 Earn $0
No recent sale recorded.
Active - Other for rent
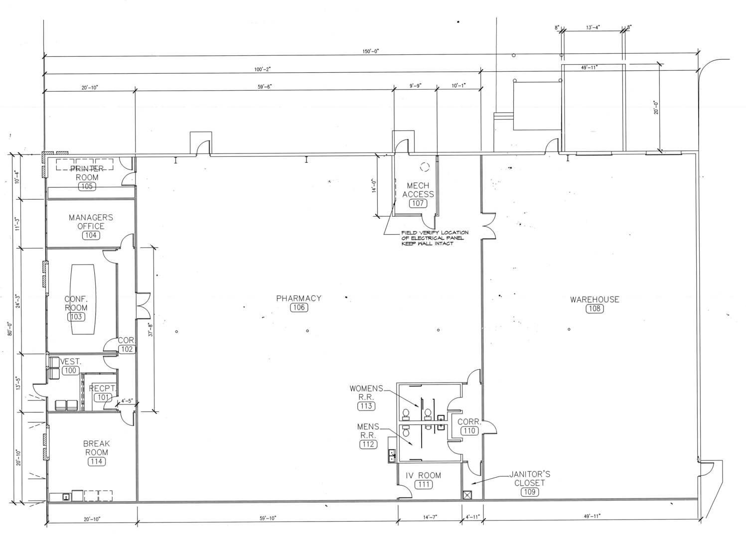
Approx. 12,000 SF flex space available for lease in Plaza 53 along E 53rd St in Davenport. Functional layout offers a balanced combination of office, production, and warehouse space, ideal for service, distribution, or showroom users. Front portion includes private offices, reception with service window, breakroom/kitchenette, restrooms, and built-out production/work areas. Rear warehouse area features high ceilings with both dock-high loading and a drive-in overhead door. Suite offers approximately 6,000 SF of warehouse with the balance comprised of office and support space, providing a true flex configuration. Monument signage and ample front-door parking. Located in Davenport's primary retail corridor near national retailers with convenient access to I-74.
- Listed by: Shawn Langan
- Brokered by: NAI Ruhl Commercial Company • 563-355-4000
- Co-listed by: Pete Hadjis • Pete Hadjis
- Co-Brokered by: NAI Ruhl Commercial Company • (563) 355-4000
- Source: MRED as distributed by MLS GRID
- MLS Number: 12590771
- MLS Last Updated: Mar 26, 2026 at 06:42pm EDT
* School data provided by National Center for Education Statistics, and GreatSchools. Intended for reference only. The GreatSchools Rating is based on a variety of school quality indicators, including test scores, college readiness, and equity data. To verify enrollment eligibility, contact the school or district directly.
What will my commute be?
Furnished: Unfurnished
Status: Active
Listed Date: 03/11/2026
Days On Market: 24
Lot Size (Acres): 2
Lot Size (Square Feet): 87120
Year Built: 1997
Construction Materials: Brick, Block, Glass, Stucco
Cooling: Central Air
Flooring: Concrete
Roof: Membrane
WaterSource: Municipal Water

Schedule a tour
Request information