$950,000 $377/sf  
$950,000
$377.28/sf
Active - Single Family Residence for sale
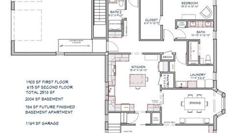
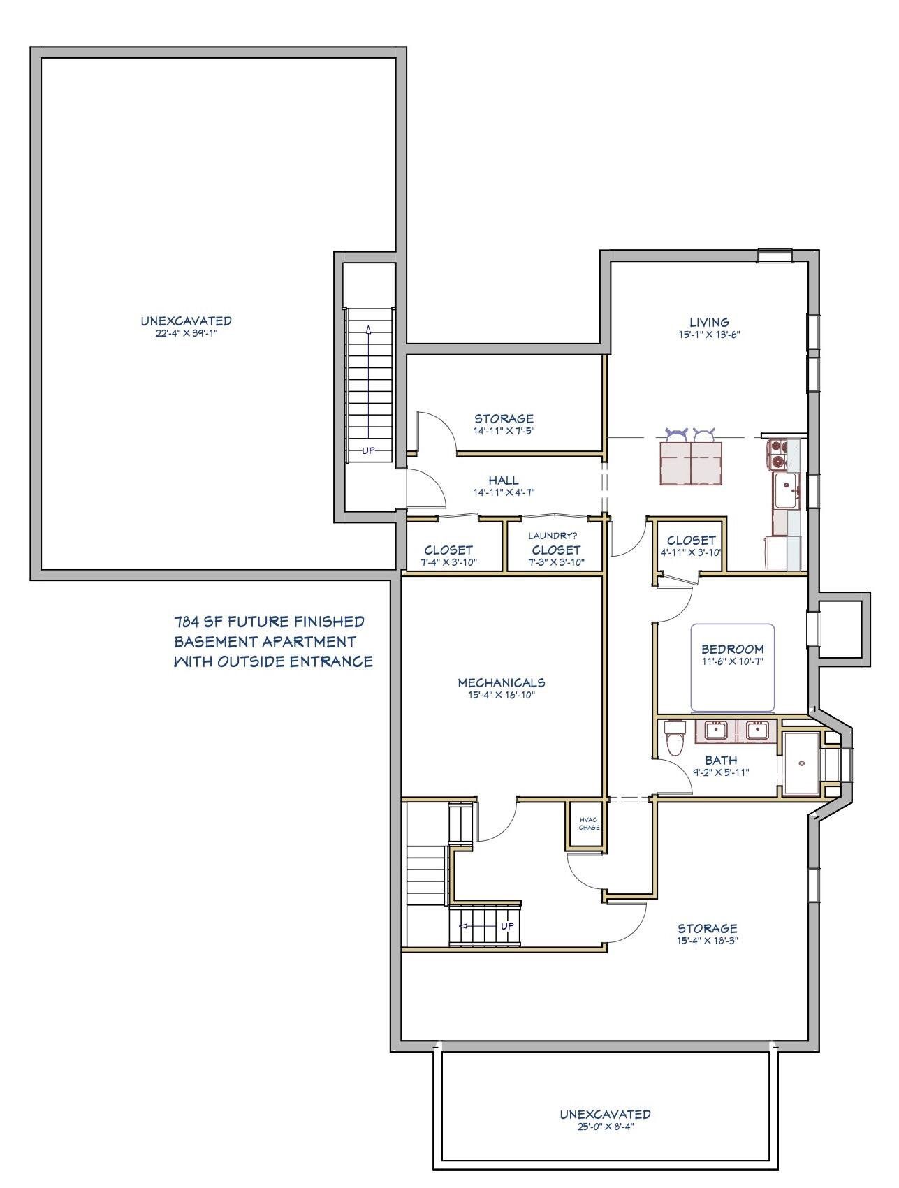
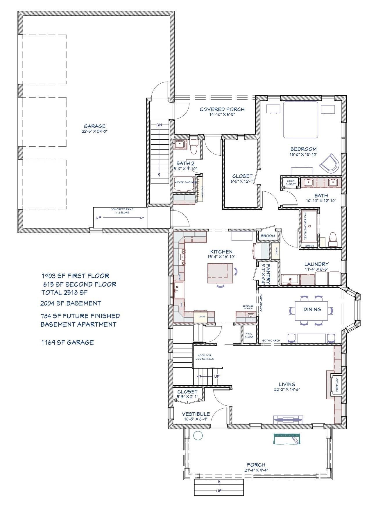
PROPOSED CONSTRUCTION Multigenerational Family Home. This unique plan -Ode To The Chicago Bungalow-shows a spacious, accessible main floor plan with 9 foot ceiling height and first floor primary suite, 626 SF on the second floor adds two more bedrooms plus full bath and the daylight basement with separate outside entrance is a complete additional 784 SF 1 bedroom apartment, with connection to the main floor. The plan is designed especially for this lot with a passive solar orientation. Net-zero-energy-ready options are available. customization of the plan is welcome, additional multigenerational plans also available for this orientation, and various exterior finishes. Actual final price will be determined by options chosen (some depicted in the renderings) and market prices at the time of construction. Brickhouses Road provides large lots for you to live and grow on, very low county taxes, sustainable living, surrounded by open spaces and nature, located NE of Urbana in the historic Big Grove area. All city services available except sewer, standard septic system is required. No HOA, but building covenants are in place. Recessive garages required and no vinyl siding is permitted. Let us help you build your new forever home here.
Beycome ID: 17076979
- Listed by: Misael Chacon • (804) 656-5007 • contact@beycome.com
- Brokered by: Beycome Brokerage Realty LLC • (804) 656-5007
- Source: Beycome
- MLS Number: 17076979
- MLS Last Updated: Feb 17, 2026 at 07:20pm EST
* School data provided by National Center for Education Statistics, and GreatSchools. Intended for reference only. The GreatSchools Rating is based on a variety of school quality indicators, including test scores, college readiness, and equity data. To verify enrollment eligibility, contact the school or district directly.
What will my commute be?
Furnished: Unfurnished
Status: Active
Listed Date: 01/27/2026
Days On Market: 22
Lot Size (Acres): 1.02
Lot Size (Square Feet): 2.3415977961433E-5
Association Amenities: Disposal, Dishwasher
Year Built: 2026
New Construction: 1
Parcel Number: 25-15-35-300-015

Schedule a tour
Request information