Listings courtesy of GILLEN & ASSOCIATES as distributed by MLS GRID.
$980,000 $312/sf Earn $19,600
$980,000
Credit Back up to $19,600*
$312.20/sf
Active - Multi Family for sale
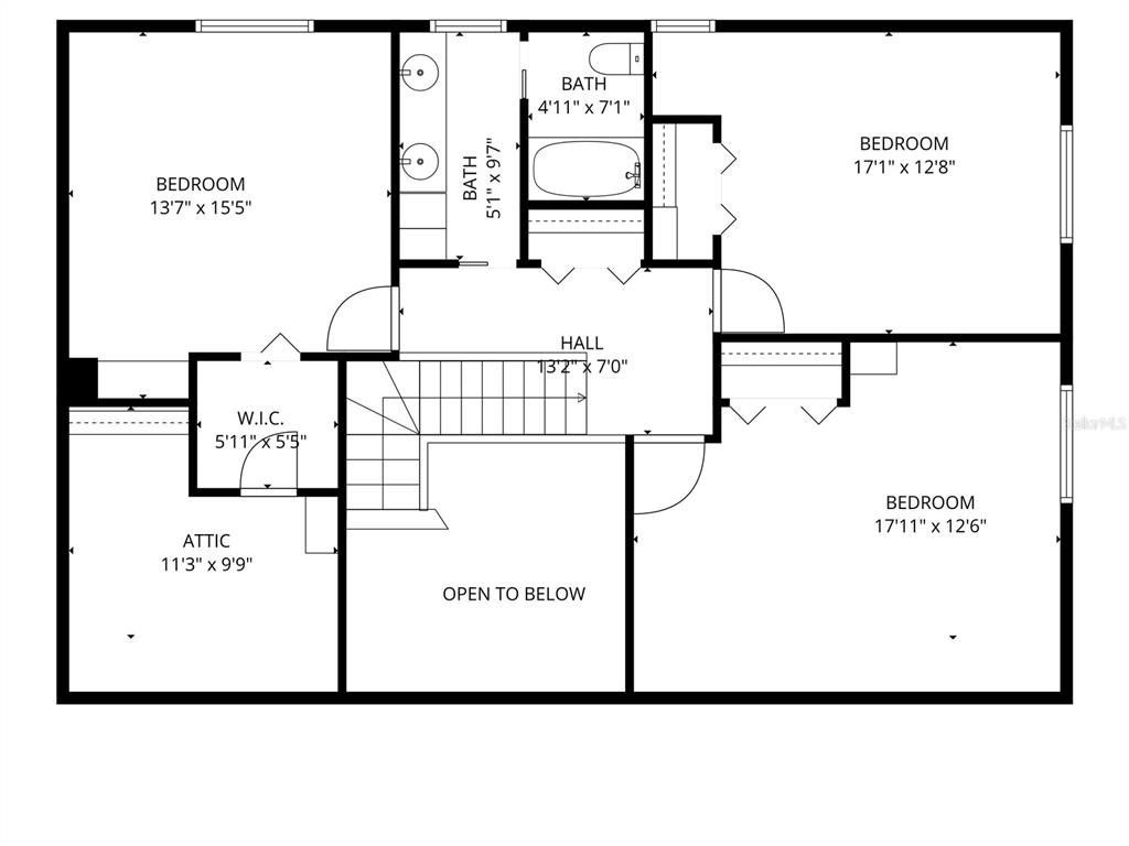
Welcome guests through an impressive two-story entryway into this beautifully maintained home designed for both comfort and entertaining. The spacious family room serves as the heart of the home, featuring custom built-in cabinetry that frames the fireplace, creating a stunning focal point for the TV, along with a convenient dry bar—perfect for hosting gatherings. The thoughtfully designed layout includes a large laundry room with abundant storage and a desirable split-bedroom floor plan. The primary suite and a guest bedroom (or ideal home office) are located on the first floor, while three generously sized bedrooms are upstairs. The third bedroom offers a unique bonus with a large walk-in closet that opens into an expansive walk-in attic space—perfect for storage or future possibilities. Step outside to your private screened pool area, complete with a dedicated pool bath so guests can come and go without tracking through the home—ideal for Florida living and entertaining. This home has been meticulously cared for with major updates already completed, including new windows with hurricane covers, hurricane-rated sliding glass doors, a new roof, A/C system, and water heater. Located in a sought-after community offering a golf course, clubhouse, fitness center, and pools, and just minutes from Countryside Mall, dining, and entertainment—this home truly combines lifestyle, location, and peace of mind.
- Listed by: Cynthia Weclew • weclew.cynthia@gmail.com
- Brokered by: GILLEN & ASSOCIATES • 321-947-0912
- Source: Stellar MLS as distributed by MLS GRID
- MLS Number: O6395849
- MLS Last Updated: Mar 27, 2026 at 05:44am EDT
* School data provided by National Center for Education Statistics, and GreatSchools. Intended for reference only. The GreatSchools Rating is based on a variety of school quality indicators, including test scores, college readiness, and equity data. To verify enrollment eligibility, contact the school or district directly.
What will my commute be?
Appliances: Dishwasher, Electric Water Heater, Microwave, Range, Refrigerator
Furnished: Unfurnished
Laundry Features: Inside, Laundry Room
Lot Features: Cul-De-Sac, Near Golf Course, Sidewalk, Street Dead-End
Number Of Lots: 1
Pool Features: Pool Screen Enclosure
Spa Features: In Ground
Status: Active
Listed Date: 04/01/2026
Days On Market: 14
Lot Size (Square Feet): 11025
Rent Includes: []
Tenant Pays: []
Garage Spaces: 2
Parking Total: 1
Year Built: 1975
Construction Materials: Block, Brick
Cooling: Central Air
Exterior Features: Hurricane Shutters, Irrigation System, Private Mailbox, Private Yard, Sidewalk, Sliding Doors
Flooring: Floor Carpet, Floor Luxury Vinyl, Floor Tile
Foundation Details: Foundation Slab
Heating: Central
Interior Features: Ceiling Fan(S), Dry Bar, Eating Space In Kitchen, Primary Bedroom Main Floor, Split Bedroom, Stone Counters, Walk-In Closet(S), Window Treatments
Roof: Roof Shingle
Electric: []
Sewer: Sewer Public Sewer
Utilities: Public
WaterSource: Water Source Public
Parcel Number: 202816962730000490
Tax Legal Description: Westchester Of Countryside Lot 49 (See N29-28-16)
Subdivision Name: Westchester Of Countryside
MLS Area Major: 33761 - Clearwater
Elementary School: Curlew Creek Elementary-PN
Middle/Junior School: Safety Harbor Middle-PN
High School: Countryside High-PN

Schedule a tour
Request information