$38,900  
$38,900
Active - Land for sale
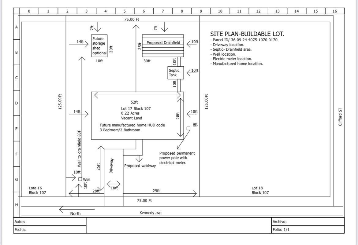
Build-ready lot in Interlachen, FL! This R-2 zoned vacant lot already has permanent electric service installed with underground conduit, saving you thousands in setup costs and months of permitting. Ready for your new project — build your dream home or bring your manufactured home. -Permanent power pole installed -Underground electrical conduit completed -Electricity connected -R-2 zoning (Single-family or duplex allowed) -Driveway - Quiet residential area Located just 9 minutes from schools, gas stations, restaurants, hardware store, AutoZone, CVS and more. Lot size: approx. 9,365 sq ft Asking: $39,900 Serious inquiries only. Video available upon request.
Beycome ID: 17082584
- Listed by: Steven Koleno • (804) 656-5007 • contact@beycome.com
- Brokered by: Beycome of Florida LLC • (804) 656-5007
- Source: Beycome
- MLS Number: 2136373
- MLS Last Updated: Mar 24, 2026 at 11:55am EDT
* School data provided by National Center for Education Statistics, and GreatSchools. Intended for reference only. The GreatSchools Rating is based on a variety of school quality indicators, including test scores, college readiness, and equity data. To verify enrollment eligibility, contact the school or district directly.
What will my commute be?
Furnished: Unfurnished
Status: Active
Listed Date: 03/23/2026
Days On Market: 1
Lot Size (Acres): 0.21
Lot Size (Square Feet): 9147.6
Parcel Number: 36-09-24-4075-1070-0170

Schedule a tour
Request information