Listings courtesy of DJ DELGADO MANAGEMENT GROUP as distributed by MLS GRID.
$429,999 $173/sf Earn $8,600
$429,999
Credit Back up to $8,600*
$172.90/sf
Active - Multi Family for sale
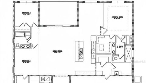
Discover the Neptune, a beautifully designed 3-bedroom, 3-bath home with a flex room, offering modern comfort and a bright, open layout in the sought-after Cypress Village of Sugarmill Woods. This thoughtfully crafted floor plan features spacious living areas, a sleek contemporary kitchen, and large windows that frame peaceful views of the surrounding greenery. The flex room adds versatility for a home office, media room, or guest space, while the covered lanai extends your living area outdoors for year-round enjoyment. The primary suite provides a relaxing retreat with a stylish bath and generous storage, and the additional bedrooms are well-appointed for family or guests. Every detail of the Neptune model blends clean design with everyday functionality, creating a home that feels both elevated and effortless. Located in Cypress Village, residents enjoy tree-lined streets, preserved greenbelts, and a quiet, established community just minutes from the Homosassa River, local springs, marinas, golf, dining, and shopping. This home offers the perfect balance of modern living and natural Florida beauty.
- Listed by: Dj Delgado • bmdjdelgadorealtor@gmail.com
- Brokered by: DJ DELGADO MANAGEMENT GROUP • 863-258-8288
- Source: Stellar MLS as distributed by MLS GRID
- MLS Number: L4959107
- MLS Last Updated: Mar 27, 2026 at 05:44am EDT
* School data provided by National Center for Education Statistics, and GreatSchools. Intended for reference only. The GreatSchools Rating is based on a variety of school quality indicators, including test scores, college readiness, and equity data. To verify enrollment eligibility, contact the school or district directly.
What will my commute be?
Appliances: Built-In Oven, Dishwasher, Microwave, Range, Refrigerator
Furnished: Unfurnished
Laundry Features: Inside, Laundry Room
Number Of Lots: 1
Status: Active
Listed Date: 02/01/2026
Days On Market: 62
Lot Size (Square Feet): 12000
Rent Includes: []
Tenant Pays: []
Association Name: Cypress Village Property Owners Association
Association Fee: $124
Association Phone: 352-382-1900
Pets Allowed: Yes
Garage Spaces: 3
Year Built: 2025
Construction Materials: Stucco
Cooling: Central Air
New Construction: 1
Flooring: Floor Luxury Vinyl
Foundation Details: Foundation Block, Foundation Slab
Heating: Central
Interior Features: Ceiling Fan(S), Walk-In Closet(S)
Property Condition: Property Condition Completed
Roof: Roof Shingle
Pets Allowed: Yes
Electric: []
Sewer: Sewer Public Sewer
Utilities: Electricity Available, Public, Sewer Available
WaterSource: Water Source Public
Parcel Number: 18e20s130010012700150
Tax Legal Description: Sugarmill Woods Cypress Vlg Pb 9 Pg 86lot 15 Blk 127
Zoning: Pdr
Subdivision Name: Sugarmill Woods Cypress Village
MLS Area Major: 34446 - Homosassa

Schedule a tour
Request information