Listings courtesy of Berg Properties as distributed by MLS GRID.
$1,595,000 Earn $31,900
• Active Under Contract
$1,595,000
Credit Back up to $31,900*
Active Under Contract - Multi Family for sale
This property has a pending offer.
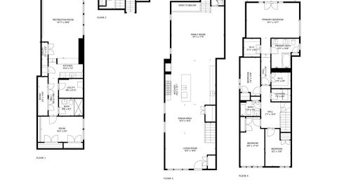
Welcome to your dream home in the heart of Logan Square, a modern single-family residence that blends luxury with thoughtful design. Perfectly situated on a corner lot, this 5-bedroom, 3.5-bath home offers the ideal balance of sophistication, comfort, and convenience. The chef's kitchen is a true showpiece, featuring a 60" Wolf range, SubZero refrigerator, Bosch dishwasher, dual sinks, and Italian countertops. Custom metalwork, designed exclusively for the home, frames the open-concept kitchen and living area, while custom cabinetry surrounds the refrigerator for a seamless, modern look. Elegant lighting and finishes from Restoration Hardware bring a refined touch of luxury throughout. Upstairs, 6 skylights fill the vaulted ceiling hallways and bedrooms with natural light, creating bright and airy spaces. Four spacious bedrooms provide room for family and guests, while the lower level extends the living space with a fifth bedroom, a sleek wet bar, and a dog wash station. A thoughtful detail for pet lovers, the back entrance even includes a "dog apartment," perfect for keeping paws clean and organized. Throughout the home, integrated speakers set the perfect ambiance for everyday living or entertaining. The exterior is equally impressive, with crisp white siding, bold black Marvin and steel windows, and striking black accents. Outdoor living abounds with a welcoming front entrance deck, a private balcony off the primary suite, a designer patio, and a spacious rooftop deck above the 2-car garage. Located near Palmer Square Park, the 606 Trail, and the vibrant dining and shopping scene of downtown Logan Square, this home offers both a family-friendly environment and sophisticated city living. Whether hosting a gathering or enjoying a quiet evening at home, this residence was designed for those who appreciate quality, style, and comfort.
- Listed by: Colleen Berg
- Brokered by: Berg Properties • 888-276-9959
- Source: MRED as distributed by MLS GRID
- MLS Number: 12573818
- MLS Last Updated: Mar 26, 2026 at 06:42pm EDT
* School data provided by National Center for Education Statistics, and GreatSchools. Intended for reference only. The GreatSchools Rating is based on a variety of school quality indicators, including test scores, college readiness, and equity data. To verify enrollment eligibility, contact the school or district directly.
What will my commute be?
Appliances: Range, Microwave, Dishwasher, High End Refrigerator, Bar Fridge, Washer, Dryer, Disposal, Stainless Steel Appliance(S), Wine Refrigerator, Range Hood
Furnished: Unfurnished
Lot Features: Corner Lot, Landscaped
Other Equipment: Security System, Sump Pump, Backup Sump Pump;
Status: Active Under Contract
Listed Date: 02/19/2026
Days On Market: 44
Garage Spaces: 2
Parking Total: 2
Year Built: 1899
Basement: Finished, Full
Cooling: Central Air
Exterior Features: Balcony, Fire Pit
Flooring: Hardwood
Foundation Details: Concrete Perimeter
Heating: Natural Gas
Interior Features: Vaulted Ceiling(S), Wet Bar
Roof: Asphalt
Window Features: Skylight(S)
Sewer: Public Sewer, Overhead Sewers
WaterSource: Lake Michigan
Parcel Number: 13352140080000

Schedule a tour
Request information