Listings courtesy of Core Realty & Investments Inc. as distributed by MLS GRID.
$170,000 $200/sf Earn $3,400
• Active Under Contract
$170,000
Credit Back up to $3,400*
$200.00/sf
Active Under Contract - Condominium for sale
This property has a pending offer.
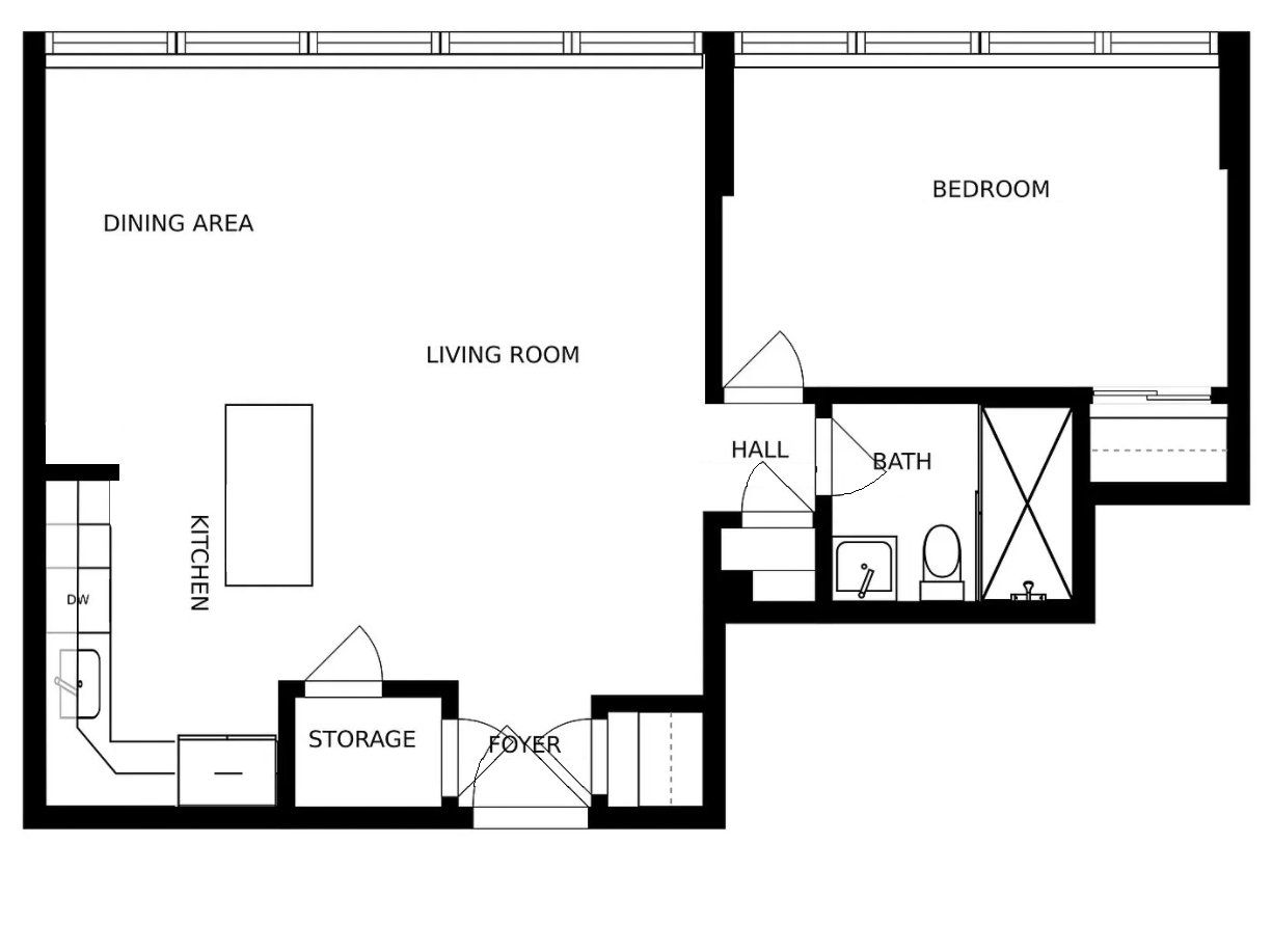
Rarely available one-bedroom condo located on the 5th floor in the heart of Chicago's Lakeview neighborhood. This spacious unit features lake views from every room, wood laminate flooring, white trim, and abundant natural light throughout. The living area is generously sized and includes space for a home office. The updated eat-in kitchen offers an open layout with a large island, newer appliances, and ample cabinet storage. The bedroom provides a comfortable retreat with multiple closets. Brand new air conditioning units installed this year. Storage is a standout feature, with several closets throughout the unit plus an additional private storage unit in the basement. Building amenities include a rooftop deck with panoramic city views, grills, an indoor solarium, 24-hour door staff, on-site management, laundry facilities, and a receiving room. Conveniently located near shopping, dining, beaches, recreation, and public transportation. HOA includes heat, water, TV/cable and high speed internet.
- Listed by: Iryna Dzhudzhuk
- Brokered by: Core Realty & Investments Inc. • 224-235-4336
- Source: MRED as distributed by MLS GRID
- MLS Number: 12556762
- MLS Last Updated: Mar 26, 2026 at 06:42pm EDT
* School data provided by National Center for Education Statistics, and GreatSchools. Intended for reference only. The GreatSchools Rating is based on a variety of school quality indicators, including test scores, college readiness, and equity data. To verify enrollment eligibility, contact the school or district directly.
What will my commute be?
Appliances: Range, Microwave, Dishwasher, Refrigerator
Furnished: Unfurnished
Status: Active Under Contract
Listed Date: 01/27/2026
Days On Market: 67
Association Fee: $864
Pets Allowed: Cats Ok
Garage Spaces: 1
Parking Total: 1
Year Built: 1958
Construction Materials: Brick
Cooling: Wall Unit(S)
Exterior Features: Door Monitored By Tv
Heating: Steam
Window Features: Screens
Pets Allowed: Cats Ok
WaterSource: Lake Michigan
Parcel Number: 14211010351172

Schedule a tour
Request information