Closing price $65,150
Mobile Home
For Sale
Sold: $65,150
Last sale: 02/20/2026
Source: Public Record
Closed
Closed - Mobile Home for sale
Note: This property is not currently for sale or for rent on beycome. The description below may be from a previous listing.
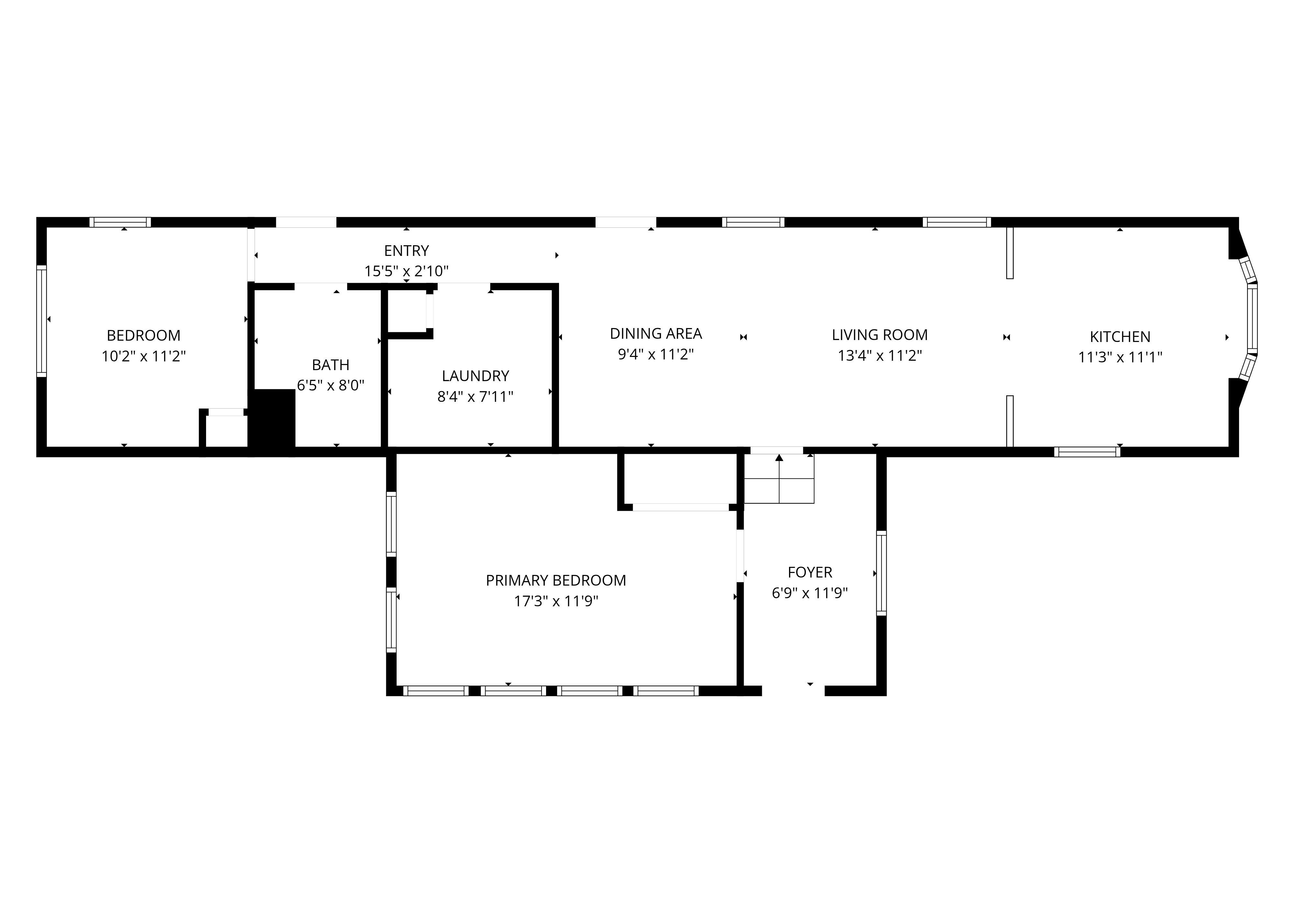
INVESTOR OPPORTUNITY | HANDYMAN SPECIAL / VALUE-ADD RENTAL | Property is Tenant Occupied. – Do Not Disturb Tenants. Unlock strong rental income and value-add potential with this fixer-upper located in the heart of Polk County. For investors, landlords, fix-and-flippers, or owner-occupants, this property has multiple exit strategies. The home is currently leased at $1,100/month, providing immediate income while renovations are planned. Situated on a spacious 0.36-acre fully fenced lot, the property features 3 bedrooms, 1 bathroom, a covered porch, ceiling fans throughout, a durable metal roof, and an on-site shed—all solid fundamentals for a value-add project. The property is being sold AS-IS, allowing buyers full flexibility to renovate, reposition, increase rents, or resell. LOCATION HIGHLIGHTS – STRONG RENTAL DEMAND AREA Conveniently located near parks, schools, shopping, and local attractions, this property sits minutes from LEGOLAND Florida Resort, a major driver of consistent rental demand. Enjoy the best of Polk County lake life, surrounded by lakes and canals, with easy access to the Chain of Lakes Trail— for walking, biking, and outdoor recreation. These features enhance long-term rental appeal and resale value. A solid opportunity to acquire a property with existing income, upside through renovations, and strong location fundamentals. Property is Tenant Occupied. – Do Not Disturb Tenants.
Beycome ID: 17077854
* School data provided by National Center for Education Statistics, and GreatSchools. Intended for reference only. The GreatSchools Rating is based on a variety of school quality indicators, including test scores, college readiness, and equity data. To verify enrollment eligibility, contact the school or district directly.
What will my commute be?
Status: Closed
Listed Date: 01/31/2026
Days On Market: 41
Lot Size (Acres): 0.36
Lot Size (Square Feet): 15681.6
Closing Price: $65,150
Closing Date: 02/20/2026
