Listings courtesy of RE/MAX Premier as distributed by MLS GRID.
$269,000 $283/sf Earn $5,380
• Active Under Contract
$269,000
Credit Back up to $5,380*
$283.16/sf
Active Under Contract - Condominium for sale
This property has a pending offer.
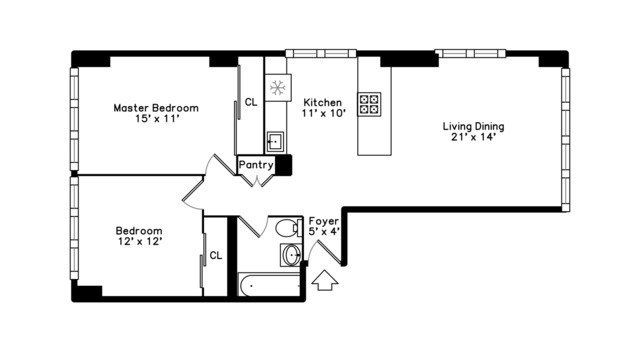
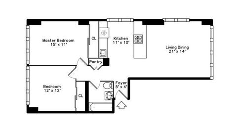
Stunning fully renovated corner 2-bedroom, 1-bath residence with a sleek open-concept layout in the heart of Lakeview. The chef's kitchen features crisp white cabinetry, quartz countertops, stainless steel appliances, and a dramatic waterfall island with seating-perfect for entertaining. Wide-plank flooring flows throughout, creating a bright and modern feel. The spacious living area is filled with natural light from oversized windows and offers beautiful city and neighborhood views. Both bedrooms feature custom closet systems, and the home offers abundant storage with custom closets throughout. Enjoy a beautifully remodeled spa-like bathroom and truly move-in-ready condition. Full-amenity, well-managed building with newly renovated rooftop deck and panoramic lake views, common patio with grills, fitness center, 24-hour door staff, on-site engineer and convenience store. Prime location steps to the lakefront, Red Line, Montrose Beach and Harbor, golf course, running and biking trails, Wrigley Field, Whole Foods, Jewel, and all the dining, shopping, and nightlife of Lakeview and Wrigleyville. Although the monthly assessment may seem high, it covers everything-so there are no additional utility costs. Owners are allowed to rent.
- Listed by: Darya Lisserman
- Brokered by: RE/MAX Premier • 312-475-1717
- Source: MRED as distributed by MLS GRID
- MLS Number: 12553039
- MLS Last Updated: Mar 26, 2026 at 06:42pm EDT
* School data provided by National Center for Education Statistics, and GreatSchools. Intended for reference only. The GreatSchools Rating is based on a variety of school quality indicators, including test scores, college readiness, and equity data. To verify enrollment eligibility, contact the school or district directly.
What will my commute be?
Appliances: Range, Microwave, Dishwasher, Refrigerator, Range Hood
Furnished: Unfurnished
Lot Features: Landscaped
Status: Active Under Contract
Listed Date: 01/31/2026
Days On Market: 62
View: Water
Association Fee: $932
Pets Allowed: Cats Ok, Dogs Ok
Accessibility Features: Main Level Entry
Garage Spaces: 1
Parking Total: 1
Year Built: 1957
Construction Materials: Brick, Concrete
Cooling: Wall Unit(S)
Exterior Features: Roof Deck
Flooring: Laminate
Heating: Natural Gas
Window Features: Blinds
Pets Allowed: Cats Ok, Dogs Ok
Sewer: Public Sewer
WaterSource: Lake Michigan
Parcel Number: 14211010341258
Elementary School: Brenneman Elementary School
High School: Lake View High School

Schedule a tour
Request information