Listings courtesy of SANDPEAK REALTY as distributed by MLS GRID.
$393,000 $205/sf Earn $7,860
$393,000
Credit Back up to $7,860*
$204.90/sf
Active - Multi Family for sale
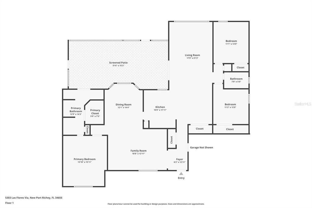
Welcome to this beautifully maintained 3-bedroom, 2-bathroom home located in the highly sought-after Hunters Ridge community, known for its prime location and very low HOA. Freshly updated with new interior and exterior paint and brand-new carpet, this home is move-in ready and offers a bright, welcoming atmosphere from the moment you walk in. Inside, high ceilings and a flowing floor plan create a spacious and inviting feel throughout the home. Natural light pours in through the skylights, adding warmth and character to the living spaces. The kitchen comes fully equipped with all major appliances including refrigerator, range, microwave, dishwasher, washer, and dryer, making this home truly turnkey. Energy efficiency and long-term savings are standout features, with a fully paid-off solar electric system and solar hot water heater, helping keep utility costs low. The property also includes a separate well for the sprinkler system servicing both the front and back yard, reducing water expenses while keeping the landscaping looking its best. For added protection and peace of mind, the home is equipped with high-quality hurricane shutters on doors and windows. Situated on an oversized lot, the property offers extra outdoor space, complemented by a large rear lanai that provides an ideal space for entertaining guests or enjoying peaceful evenings outdoors. The location is hard to beat—just minutes from shopping, restaurants, medical facilities, and Starkey Market, as well as close to Starkey Ranch. The home is zoned for highly rated schools including Longleaf Elementary, River Ridge Middle, and River Ridge High School. Enjoy the best of Florida living with convenient access to the coast and travel hubs—approximately 30 minutes to Fred Howard Park Beach, 35 minutes to Tampa International Airport. This home perfectly combines location, lifestyle, and long-term value—don’t miss the opportunity to make it yours. Seller is offering $4,000 towards new flooring. **Use of sellers preferred lender to get 1% of closing costs covered**
- Listed by: Justin Kiziuk • justin@sandpeakrealty.com
- Brokered by: SANDPEAK REALTY • 727-232-2192
- Source: Stellar MLS as distributed by MLS GRID
- MLS Number: W7883853
- MLS Last Updated: Mar 27, 2026 at 05:44am EDT
* School data provided by National Center for Education Statistics, and GreatSchools. Intended for reference only. The GreatSchools Rating is based on a variety of school quality indicators, including test scores, college readiness, and equity data. To verify enrollment eligibility, contact the school or district directly.
What will my commute be?
Appliances: Dishwasher, Dryer, Range, Refrigerator, Solar Hot Water Owned, Washer
Furnished: Unfurnished
Laundry Features: Electric Dryer Hookup, Laundry Closet, Washer Hookup
Number Of Lots: 1
Status: Active
Listed Date: 03/11/2026
Days On Market: 25
Lot Size (Square Feet): 13147
Rent Includes: []
Tenant Pays: []
Association Name: Parklane Real Estate Services
Association Fee: $284
Association Phone: 727-232-1173
Pets Allowed: Yes
Garage Spaces: 2
Year Built: 1989
Construction Materials: Vinyl Siding
Cooling: Central Air
Exterior Features: Hurricane Shutters, Irrigation System, Private Mailbox, Rain Gutters, Sidewalk, Sliding Doors, Sprinkler Metered
Fireplace Features: Living Room
Flooring: Floor Carpet, Floor Laminate, Floor Tile
Foundation Details: Foundation Slab
Heating: Central
Interior Features: Ceiling Fan(S), Skylight(S), Vaulted Ceiling(S)
Roof: Roof Shingle
Pets Allowed: Yes
Electric: ["Photovoltaics Seller Owned"]
Sewer: Sewer Public Sewer
Utilities: Cable Available, Electricity Connected, Phone Available, Public, Sprinkler Well, Water Connected
WaterSource: Water Source Public, Water Source Well
Parcel Number: 1626120120000002670
Tax Legal Description: Hunters Ridge Unit Four Pb 26 Pgs 122-124 Lot 267 Or 1833 Pg 201
Zoning: R4
Subdivision Name: Hunters Ridge
MLS Area Major: 34655 - New Port Richey/Seven Springs/Trinity
Elementary School: Longleaf Elementary-PO
Middle/Junior School: River Ridge Middle-PO
High School: River Ridge High-PO

Schedule a tour
Request information