Listings courtesy of CENTURY 21 J.W.MORTON R.E. as distributed by MLS GRID.
$596,000 $76/sf Earn $11,920
$596,000
Credit Back up to $11,920*
$76.37/sf
Active - Mixed Use for sale
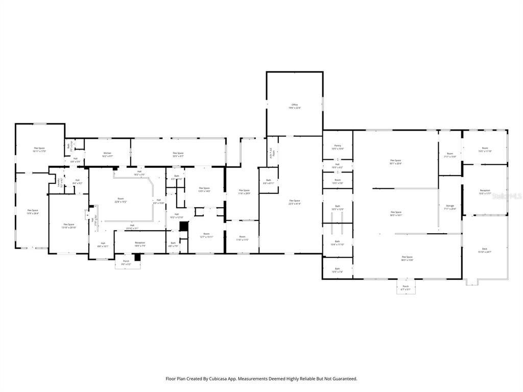
This offering presents a unique opportunity to acquire a 7,804 square foot commercial building situated on 0.47 acres within the City Limits of Crystal River, Florida, strategically located just off the primary commercial corridor of US Highway 19/98, which experiences approximately 27,500 vehicles per day. Positioned in the heart of one of the area’s most active retail and service districts, the property benefits from strong surrounding commercial activity including national grocers, retailers, quick-service and sit-down restaurants, bars, and local businesses, with Burger King located directly along the western boundary line of the property. The building, originally constructed and operated as a daycare facility, features a large and flexible interior layout capable of supporting a wide variety of commercial uses. The structure includes expansive open flex areas, multiple private offices or possible exam rooms, seven roughed-in bathrooms, a laundry facility, and a kitchen/break area. This existing configuration provides an efficient foundation for numerous potential uses with minimal reconfiguration required. The property has never experienced flooding, an important distinction for investors and owner-users seeking operational reliability and long-term stability in coastal Florida markets. The site is located just a few blocks from Downtown Crystal River Square and is zoned CH (Commercial High Intensity) under the City of Crystal River Land Development Code. This zoning designation allows for a wide range of commercial and institutional uses, creating significant flexibility for future ownership. Permitted or potential uses may include medical and professional office space, assisted living or skilled nursing facilities, rehabilitation or treatment centers, group homes, veterinary clinics, restaurants, bars, and various service-oriented businesses, subject to municipal approvals where applicable. Citrus County is also included within the Tampa–St. Petersburg–Clearwater Metropolitan Statistical Area, which ranks as the 18th largest MSA in the United States. This regional connectivity provides access to the broader Tampa Bay economic ecosystem while maintaining the advantages of a growing secondary market with lower entry costs and expanding demand for services. Close
- Listed by: Elias Kirallah • Elias@eliasgeorge.com
- Brokered by: CENTURY 21 J.W.MORTON R.E. • 352-726-6668
- Source: Stellar MLS as distributed by MLS GRID
- MLS Number: OM720784
- MLS Last Updated: Mar 27, 2026 at 05:44am EDT
* School data provided by National Center for Education Statistics, and GreatSchools. Intended for reference only. The GreatSchools Rating is based on a variety of school quality indicators, including test scores, college readiness, and equity data. To verify enrollment eligibility, contact the school or district directly.
What will my commute be?
Furnished: Unfurnished
Number Of Lots: 3
Status: Active
Listed Date: 03/15/2026
Days On Market: 21
Lot Size (Square Feet): 20473
Rent Includes: []
Tenant Pays: []
Parking Total: 6
Year Built: 1956
Building Features: Bathrooms
Construction Materials: Block, Brick
Cooling: Central Air
Flooring: Floor Carpet, Floor Ceramic Tile
Foundation Details: Foundation Slab
Roof: Roof Shingle
Electric: []
Sewer: Sewer Public Sewer
WaterSource: Water Source Public
Parcel Number: 17e18s220020000001961
Tax Legal Description: Knights Add To Crystal River Pb 1 Pg 28 E 58 Ft Of Lot 196 Less The Of W 42 Ft Of Lot 196
Zoning: Cg, Ch
Subdivision Name: Knights Add
MLS Area Major: 34429 - Crystal River

Schedule a tour
Request information