Listings courtesy of Twin Oaks Realty, Inc as distributed by MLS GRID.
$179,900 $191/sf Earn $3,598
$179,900
Credit Back up to $3,598*
$191.18/sf
Active - Condominium for sale
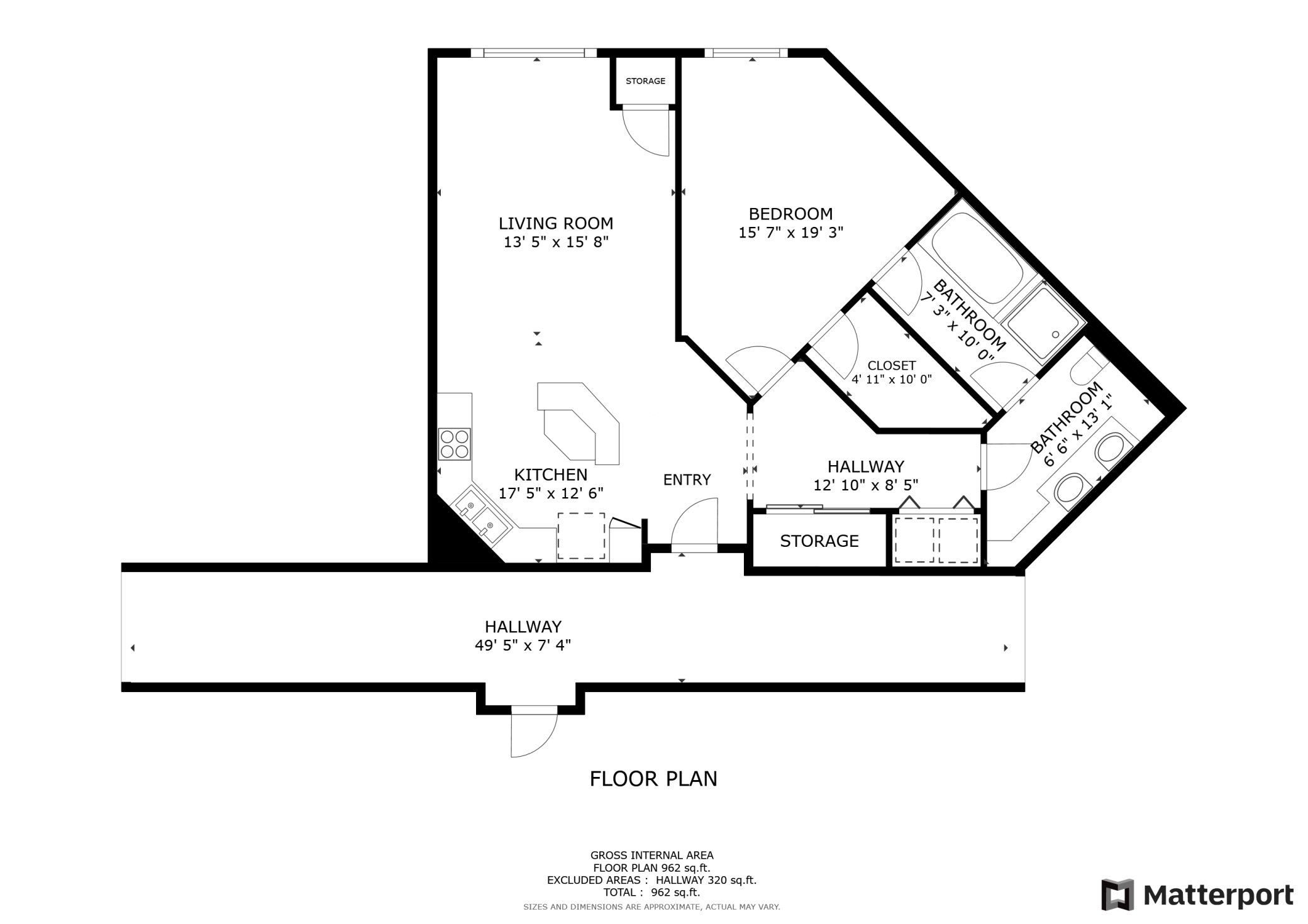
Immaculate condo bright and open design terrific location so convenient to everything. Open kitchen with center island breakfast bar, good cabinetry and counter work space. Spacious living room with plenty of space for a formal dining room area too. Luxury bath with double sinks, separate shower and jetted tub. Good storage closets. Laundry area in your unit. Main bedroom is bright south facing with a walk in closet. Terrific building with lots of amenities: elevator, underground heated parking with car wash, community party room, patio, secured entrance, fenced in dog run yes this condo allows pets!. Rentals are allowed with some restrictions too. Also a fitness area with sauna, outdoor grill and more. Mounds View school district. You will love to call this place home!!
- Brokered by: Twin Oaks Realty, Inc
- Source: Northstar MLS as distributed by MLS GRID
- MLS Number: 7036583
- MLS Last Updated: Mar 25, 2026 at 08:36pm EDT
* School data provided by National Center for Education Statistics, and GreatSchools. Intended for reference only. The GreatSchools Rating is based on a variety of school quality indicators, including test scores, college readiness, and equity data. To verify enrollment eligibility, contact the school or district directly.
What will my commute be?
Appliances: Dishwasher, Disposal, Dryer, Microwave, Range, Refrigerator, Washer
Furnished: Unfurnished
Lot Features: Tree Coverage - Light
Status: Active
Listed Date: 03/12/2026
Days On Market: 41
Association Name: Compass Management
Association Fee: $460
Accessibility Features: Accessible Elevator Installed, Wheelchair Ramp(S)
Garage Spaces: 1
Parking Total: 1
Year Built: 2002
Cooling: Central Air
Heating: Forced Air
Other Structures: Kennel/Dog Run
Roof: Asphalt
Sewer: City Sewer/Connected
WaterSource: City Water/Connected
Parcel Number: 293023130130
Subdivision Name: Cic 652 Main St Village

Schedule a tour
Request information