Listings courtesy of Berkshire Hathaway TX Realty as distributed by MLS GRID.
$329,000 $436/sf Earn $6,580
• Active Under Contract
$329,000
Credit Back up to $6,580*
$436.34/sf
Active Under Contract - Condominium for sale
This property has a pending offer.
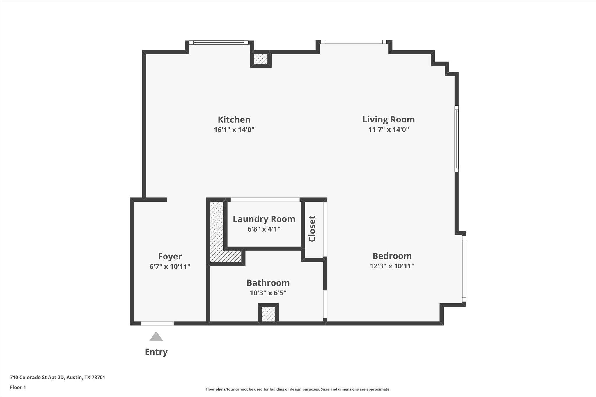
One-bedroom urban studio loft in the historic Brown Building, deep in the heart of downtown Austin with super rare major tax savings from the historic tax exemption (up to about 75% w/homestead and estimated 35% without-investors). Coveted corner unit showcasing four massive sections of windows, super views and cheery light streams. Built in 1938, this Art Deco landmark blends timeless architecture with modern comfort. Inside, the open loft layout features tall 10 ft+ concrete ceilings, spacious updated kitchen w/island, in-unit full washer and dryer connections, updated bath, stainless appliances and bright open spaces capturing the energy and heartbeat of the city below. Quiet, super secure building with an elegant marble lobby, original vintage mailboxes, three fast elevators, private fob access and a callbox for guests and deliveries. Amenities include a rooftop deck with panoramic skyline views, well-equipped fitness center and one easy access space in attached garage parking. HOA covers water, sewer, trash, and parking. Central chilled-water HVAC keeps utilities very low resulting in Brown Building residents enjoying the most economical downtown ATX living. Google high-speed internet. Very pet friendly community with no weight limit. Warrantable for conventional financing. No STR; 6-month minimum lease. Step outside and experience your best life. Sip coffee at Houndstooth, Jo’s, or Merit, dinner at Comedor, Red Ash, or La Condesa, and weekend visits to the Downtown Farmers Market at Republic Square. Trader Joe’s, Lady Bird Lake, 2nd Street District, Hike/Bike Trails, State Capitol, and Waterloo Park are all just a short walk away. Truly a rare gem offering history, design, and location in one classic downtown address.
- Listed by: Kent Redding • (512) 797-5737
- Brokered by: Berkshire Hathaway TX Realty • (512) 306-1001
- Source: Unlock MLS as distributed by MLS GRID
- MLS Number: 1878040
- MLS Last Updated: Mar 26, 2026 at 01:00am EDT
* School data provided by National Center for Education Statistics, and GreatSchools. Intended for reference only. The GreatSchools Rating is based on a variety of school quality indicators, including test scores, college readiness, and equity data. To verify enrollment eligibility, contact the school or district directly.
What will my commute be?
Appliances: Dishwasher, Disposal, Microwave, Oven, Free-Standing Range, Self Cleaning Oven
Furnished: Unfurnished
Lot Features: Public Maintained Road
Status: Active Under Contract
Listed Date: 10/21/2025
Days On Market: 164
View: City
Association Name: Brown Building HOA
Association Fee: $675
Garage Spaces: 1
Parking Total: 6
Year Built: 1940
Construction Materials: Masonry – All Sides
Cooling: Central Air
Flooring: Terrazzo
Foundation Details: Slab
Heating: Central
Interior Features: Breakfast Bar, Ceiling-High, Elevator, Entrance Foyer, Primary Bedroom On Main
Property Condition: Resale
Roof: Concrete
Sewer: Public Sewer
Utilities: Electricity Connected
WaterSource: Public
Parcel Number: 02060121290000
Tax Legal Description: Unt D * Flr 2 Brown Building Lofts Condominium Amended Plus .79% Interest In Common Area
Subdivision Name: Brown Bldg Lofts Condo Amd
Elementary School: Mathews
Middle/Junior School: O Henry
High School: Austin

Schedule a tour
Request information