Listings courtesy of KELLER WILLIAMS GULF BEACHES as distributed by MLS GRID.
$797,000 $699/sf Earn $15,940
$797,000
Credit Back up to $15,940*
$699.12/sf
Active - Condominium for sale
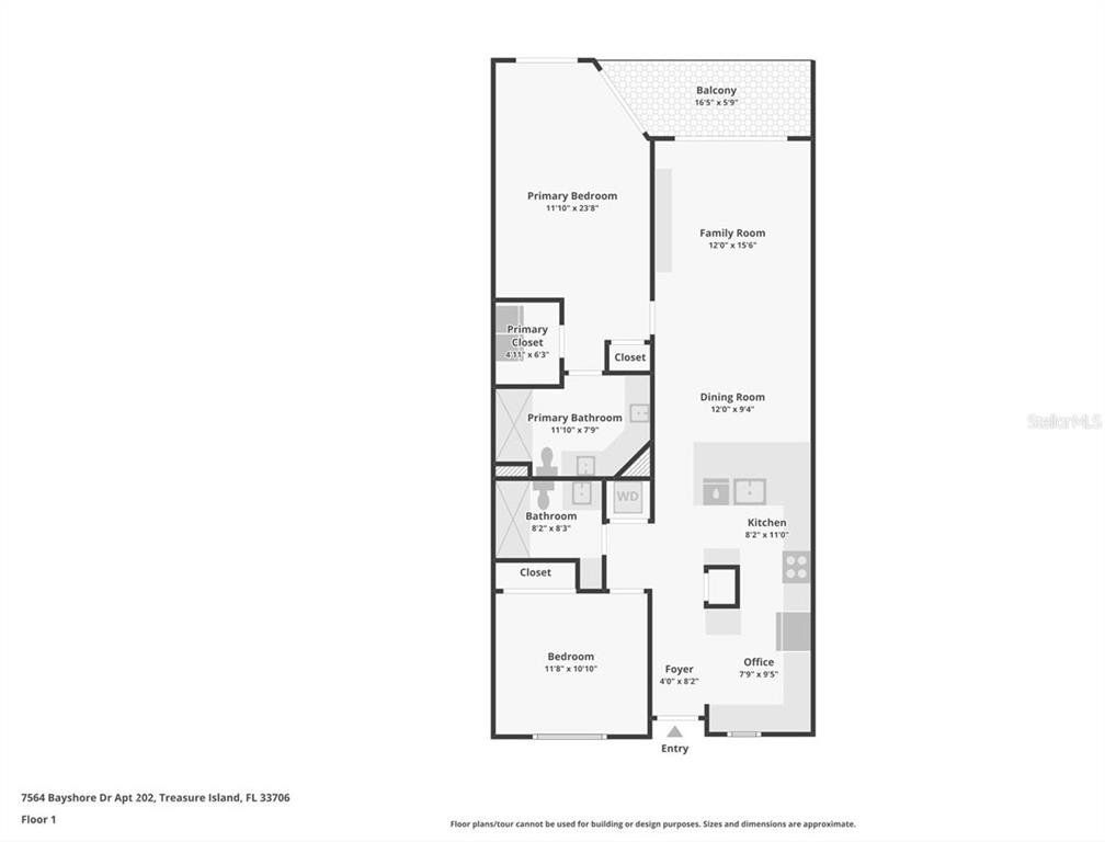
Gulf Front Luxury Condo at Land’s End | Fully Furnished | Weekly Rentals Allowed - Located within the gated Land’s End community on Sunset Beach. This Gulf front residence offers true resort-style living on 14 waterfront acres. This 2BR/2BA condo, is a second-floor residence and features new flooring, updated kitchen with granite counter tops, stainless steel appliances, recessed lighting, in-unit laundry and expansive sliders opening to a private balcony overlooking the sugar white sands of Treasure Island. Fully furnished, covered parking space, pet-friendly community, and weekly rentals allowed —perfect as a luxury retreat or income-producing investment - current income is over $55K. Located within the prestigious Land’s End community, residents enjoy resort-style amenities across 14 lush, waterfront acres. Highlights include a large heated pool, spa, tennis and pickleball courts, volleyball, clubhouse, scenic boardwalks, and 24/7 guarded gate security. Wake up to sweeping Gulf views from your balcony, enjoy vibrant sunsets, rolling waves, and playful dolphins, all set against the conic backdrop of Treasure Island’s sugar white sands. This pet-friendly community offers a rare sense of exclusivity. The milestone inspection has been completed and has passed! This condo offers the perfect mix of luxury and laid-back beach living, ensuring peace, privacy, and a true escape. This is more than a condo—it’s a lifestyle investment in one of Florida’s most coveted coastal communities. Schedule your private showing today and step into luxury at Land’s End.
- Listed by: Gina Gold • gina.a.gold@gmail.com
- Brokered by: KELLER WILLIAMS GULF BEACHES • 727-367-3756
- Source: Stellar MLS as distributed by MLS GRID
- MLS Number: TB8457783
- MLS Last Updated: Mar 27, 2026 at 05:44am EDT
* School data provided by National Center for Education Statistics, and GreatSchools. Intended for reference only. The GreatSchools Rating is based on a variety of school quality indicators, including test scores, college readiness, and equity data. To verify enrollment eligibility, contact the school or district directly.
What will my commute be?
Appliances: Dishwasher, Disposal, Dryer, Electric Water Heater, Freezer, Microwave, Range, Refrigerator, Washer
Community Features: Buyer Approval Required, Clubhouse, Deed Restrictions, Gated Community - Guard, Golf Carts Ok, Pool, Sidewalks, Tennis Court(S)
Fencing: Fencing Wire
Furnished: Furnished
Laundry Features: Inside, Laundry Closet
Lot Features: Landscaped
Number Of Lots: 1
Pool Features: Pool In Ground
Security Features: Gated Community, Security Gate, Smoke Detector(S)
Spa Features: In Ground
Status: Active
Listed Date: 12/14/2025
Days On Market: 111
View: View Water
Rent Includes: []
Tenant Pays: []
Association Name: Heather Selfe
Association Fee: $1,062
Association Phone: 727-360-4323
Pets Allowed: Cats Ok, Dogs Ok
Parking Total: 1
Year Built: 1985
Construction Materials: Concrete
Cooling: Central Air
Exterior Features: Balcony, Lighting, Sidewalk, Sprinkler Metered, Tennis Court(S)
Flooring: Floor Laminate, Hardwood Floor
Foundation Details: Foundation Stilt/On Piling
Heating: Central
Interior Features: Ceiling Fan(S), Living Room/Dining Room Combo, Thermostat
Other Structures: Tennis Court(S)
Property Condition: Property Condition Completed
Roof: Roof Membrane
Window Features: Windows Storm Window(S)
Pets Allowed: Cats Ok, Dogs Ok
Electric: []
Sewer: Sewer Public Sewer
Utilities: Cable Connected, Electricity Connected, Street Lights, Water Connected
WaterSource: Water Source Public
Parcel Number: 363115498590112020
Tax Legal Description: Land'S End At Sunset Beach 3 Condo Bldg 11, Unit 202 Together With The Use Of Parking Space 28
Zoning: Resi
Subdivision Name: Lands End At Sunset Beach Condo
MLS Area Major: 33706 - Pass a Grille Bch/St Pete Bch/Treasure Isl

Schedule a tour
Request information