Listings courtesy of CIGAR CITY REALTY LLC as distributed by MLS GRID.
$199,000 $103/sf Earn $3,980
$199,000
Credit Back up to $3,980*
$103.38/sf
Active - Multi Family for sale
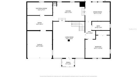
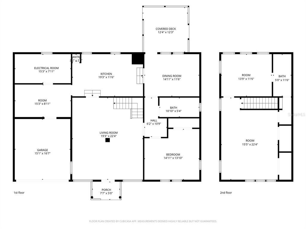
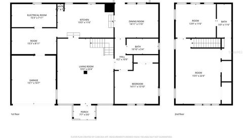
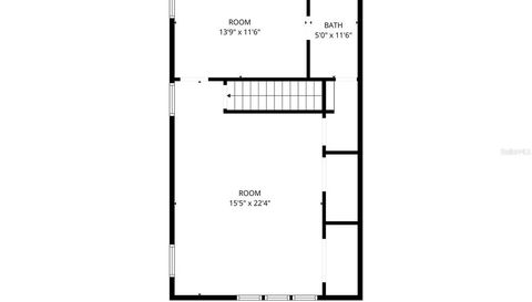
Discover the potential of this 1,925 sq. ft. multi-level residence situated on a prime corner lot in Inverness. Built in 1930, this 3-bedroom (plus bonus room), 2-bath home offers an expansive layout under a 2,495 sq. ft. roofline. The interior features a formal dining room, eat-in kitchen, and a master-on-main split plan that is highly sought after for both rentals and families. Outdoors, the .2-acre lot is fully fenced and buffered by an adjacent county parcel, ensuring a quiet retreat. Recent updates include a new well pump and durable luxury vinyl tile flooring in key areas. Located in a "car-optional" sweet spot, you are minutes away from Citrus Memorial Hospital, downtown festivals, and the public boat ramps to the Chain of Lakes. Whether you’re looking to finish a historic restoration or secure a high-demand rental property in a growing market, 7811 E Watson is a must-see. Property is being sold AS-IS—don’t miss out on this piece of Inverness history!
- Listed by: Frankie Herrera • afherrera3@gmail.com
- Brokered by: CIGAR CITY REALTY LLC • 813-468-8109
- Source: Stellar MLS as distributed by MLS GRID
- MLS Number: TB8486332
- MLS Last Updated: Mar 27, 2026 at 05:44am EDT
* School data provided by National Center for Education Statistics, and GreatSchools. Intended for reference only. The GreatSchools Rating is based on a variety of school quality indicators, including test scores, college readiness, and equity data. To verify enrollment eligibility, contact the school or district directly.
What will my commute be?
Appliances: Dishwasher
Fencing: Fencing Chain Link, Fencing Wood
Furnished: Unfurnished
Laundry Features: Laundry Room
Lot Features: Oversized Lot
Number Of Lots: 1
Status: Active
Listed Date: 03/12/2026
Days On Market: 23
Lot Size (Square Feet): 8590
View: View Trees/Woods
Rent Includes: []
Tenant Pays: []
Architectural Style: Craftsman
Carport Spaces: 2
Parking Total: 1
Year Built: 1930
Construction Materials: Wood Frame, Wood Siding
Cooling: Central Air
Exterior Features: Lighting, Storage
Flooring: Floor Laminate
Foundation Details: Foundation Crawlspace, Foundation Slab
Heating: Central
Interior Features: High Ceilings
Other Structures: Shed(S), Storage, Workshop
Property Condition: Property Condition Completed
Roof: Roof Shingle
Pets Allowed: Yes
Electric: []
Sewer: Sewer Public Sewer
Utilities: Public
WaterSource: Water Source Public
Parcel Number: 20e19s330000122300010
Tax Legal Description: Com At The Intersection Of The South Line Of The Se L/4 Of The Ne L/4 Of Sec33-19s-20e And The W'Rly Row Line Of U.S. Highway No. 41 Thn West Along Said South Line A Dst Of 309.30 Ft To The Pob Thn Cont West Along Said South Line A Dst Of 118 Ft To A Concrete Monument Set In A Fence Line As Shown On A Survey By Allen R. Kisinger R.L.S. 1120 For Robert Conner Dated December 1968 Thn N 5deg 11'37" W Along Said Fence Line A Dst Of 75 Ft Thn East 118 Ft Thn S 5deg 11'37" E 75 Ft To The Pob Less And Except Any Portion Deeded To Robert W. Conner And Norma B. Conner His Wife As Recorded In Official Record Book 237 Page 209
Zoning: Mdrmh
Subdivision Name: Se Center Cc-4821
MLS Area Major: 34450 - Inverness
Elementary School: Inverness Primary School
Middle/Junior School: Inverness Middle School
High School: Citrus High School

Schedule a tour
Request information