Listings courtesy of Network Property Managment LLC as distributed by MLS GRID.
$780,000 Earn $15,600
• Active Under Contract
$780,000
Credit Back up to $15,600*
Active Under Contract - Other for sale
This property has a pending offer.
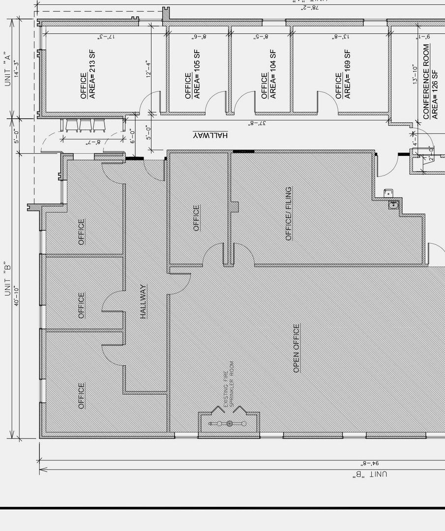
+/- 5,675sf freestanding building on an approximately 20,280sf site that has +/-32 parking spaces. Lot dimensions are ('120 x 169'). There is 120ft frontage and one curb cut along 79th St. Fully built out professional offices with approximately 1,000sf of warehouse /storage space in the rear of the building. Rear area has an 8ft high overhead door for delivery into the storage area. Building can accommodate a variety of businesses as well as office or medical uses. Floor plan can work for 1 or 2 users. Ideal for user or investor. Building has fire protection sprinklers. Close proximity to I-294 and I -55. Traffic counts along 79th St. are 28,000 (VPD) and day and 16,000 VPD on Roberts Rd. Traffic counts are expected to increase when I-294 North & South bound ramps (currently under construction) are completed on 79th St and 88th Ave.
- Listed by: Adam Haleem
- Brokered by: Network Property Managment LLC • 708-873-5540
- Co-listed by: Neil Haleem • Neil Haleem
- Co-Brokered by: Network Property Managment LLC • (708) 873-5540
- Source: MRED as distributed by MLS GRID
- MLS Number: 12436220
- MLS Last Updated: Apr 6, 2026 at 07:16pm EDT
* School data provided by National Center for Education Statistics, and GreatSchools. Intended for reference only. The GreatSchools Rating is based on a variety of school quality indicators, including test scores, college readiness, and equity data. To verify enrollment eligibility, contact the school or district directly.
What will my commute be?
Current Use: Commercial
Furnished: Unfurnished
Status: Active Under Contract
Listed Date: 07/31/2025
Days On Market: 250
Lot Size (Square Feet): 20280
Year Built: 1985
Construction Materials: Brick
Cooling: Central Air
Flooring: Carpet, Concrete
Foundation Details: Concrete Perimeter
Roof: Membrane
Parcel Number: 18361000130000
Zoning: Commr

Schedule a tour
Request information