Listings courtesy of Miami Commercial Real Estate, LLC..
$1,275,000 Earn $25,500
$1,275,000
Credit Back up to $25,500*
Active - Other for sale
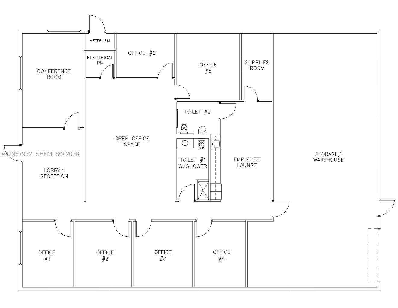
Exceptional end-cap unit featuring a welcoming reception area connected to conference room, 6 private offices, large open office floor plan, an employee lounge, supplies room, and warehouse area with 1 powered roll-up door. 2 restrooms, one of which includes a private shower, a practical amenity for active operational environments. * Office/Warehouse Ratio ±68% / 32% * 7 assigned parking spaces plus an additional space available at the rear roll-up door. The unit also benefits from direct frontage onto the shared guest parking lot serving the center. * Newly installed 240/120V, 200-Amp, 3-Phase electric service, providing robust capacity for a wide range of business operations. * 2 independent A/C systems provide full coverage and built-in redundancy. * Impact-rated windows and storefront entry door. * Insulated, hurricane-rated powered roll-up loading door for warehouse access. * 10 year structural recertification completed in 2022. BROCHURE AND FLOORPLAN ATTACHED
- Listed by: Lissette Gonzalez Torres • 305-807-5220 • LISSETTE@miami-cre.com
- Brokered by: Miami Commercial Real Estate, LLC. • 786-558-9310
- Source: Miami MLS
- MLS Number: A11987932
- MLS Last Updated: Apr 11, 2026 at 01:48pm EDT
* School data provided by National Center for Education Statistics, and GreatSchools. Intended for reference only. The GreatSchools Rating is based on a variety of school quality indicators, including test scores, college readiness, and equity data. To verify enrollment eligibility, contact the school or district directly.
What will my commute be?
Furnished: Unfurnished
Status: Active
Listed Date: 03/22/2026
Days On Market: 21
Association Fee: $1,608
Parking Total: 7
Year Built: 1972
Building Name: Airways International Center
Electric: 3 Phase Electric
Electric On Property: 1
Parcel Number: 35-30-27-064-0150
Tax Legal Description: Airways Centre Condo Unit 8119 Undiv 5% Int In Common Elements Off Rec 24485-3096 Coc 25004-1264 10 2006 1
Zoning: 7300

Schedule a tour
Request information