Listings courtesy of D R Horton Realty of NW Florida, LLC.
$629,900 $202/sf Earn $12,598
$629,900
Credit Back up to $12,598*
$202.35/sf
Active - Multi Family for sale
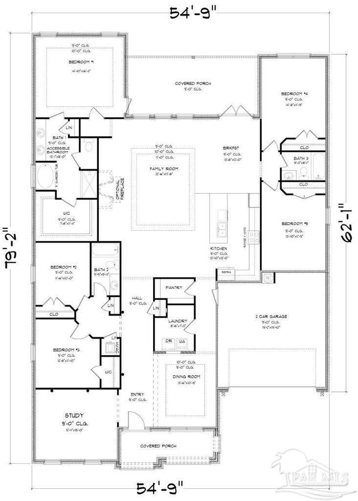
Welcome to 8239 Tidwell Road, set on a sprawling 1.5-acre lot! The McKenzie plan is a stunning home offering five generous bedrooms and three full bathrooms. Upon entering, you'll find a bright and inviting foyer that guides you past an elegant formal dining room and a large study. The kitchen is complete with a spacious center island, ample cabinetry, and a convenient walk-in pantry. The primary suite serves as a personal retreat, showcasing trey ceilings and a luxurious ensuite bathroom equipped with a grand shower, a soaking tub, and a dual-sink vanity, along with a walk-in closet. Two guest bedrooms are near the kitchen and another two close to the foyer, with each pair sharing a beautifully designed bathroom. Located in Milton, this residence is conveniently near top-rated schools, grocery stores, and dining establishments.
- Listed by: Brittany Hurst • bmhurst@drhorton.com
- Brokered by: D R Horton Realty of NW Florida, LLC • 850-377-2101
- Source: Pensacola MLS
- MLS Number: 660164
- MLS Last Updated: Mar 27, 2026 at 06:42pm EDT
* School data provided by National Center for Education Statistics, and GreatSchools. Intended for reference only. The GreatSchools Rating is based on a variety of school quality indicators, including test scores, college readiness, and equity data. To verify enrollment eligibility, contact the school or district directly.
What will my commute be?
Appliances: Electric Water Heater, Dishwasher, Disposal, Microwave, Self Cleaning Oven
Furnished: Unfurnished
Laundry Features: W/D Hookups
Lot Features: Central Access
Number Of Lots: 1
Security Features: Smoke Detector(S)
Status: Active
Listed Date: 03/04/2025
Days On Market: 396
Lot Size (Square Feet): 65775.6
Existing Lease Type: []
Tenant Pays: []
Architectural Style: Craftsman
Garage Spaces: 2
Parking Total: 2
Year Built: 2025
Construction Materials: Frame
Cooling: Heat Pump, Central Air, Ceiling Fan(S)
New Construction: 1
Flooring: Floor Carpet, Floor Simulated Wood
Foundation Details: Foundation Slab
Heating: Heat Pump, Central
Interior Features: Baseboards, Ceiling Fan(S), Crown Molding, High Ceilings, Recessed Lighting, Walk-In Closet(S)
Property Condition: Property Condition Under Construction
Roof: Roof Shingle
Window Features: Windows Double Pane Windows, Windows Shutters
Electric: ["Circuit Breakers", "Copper Wiring"]
Sewer: Sewer Septic Tank
Utilities: Cable Available
Parcel Number: 303n290000012080000
Tax Legal Description: Com At Se Cor Of Sw4 Of 30-3n- 29w; Thn N02*51'21"E For 330.13 Ft To A Capped Iron (Lb #5i70); Thn N87*03'23"W For 131.29 Ft To A Capped Iron (Lb #5170) On W Maint Claim Of Tidwell Rd; Thn N86*59'20"W Along Mnmt S Line Of N2 Of S2 Of Se4 Of Sw4 Of Said Section For 554.64 Ft; Thn N02*49'10"E For 168.26 Ft To Pob; Thn N02*49'10"E For 161.50 Ft; Thn S87*00'17"E Along Mnmt N Line Of Then S2 Of S2 Of Se 4 Of Sw 4 Of Said Section For 358.16 Ft To W Maint Claim Of Tidwell Rd; Thn S27*55'13"E Along Said W Maint Claim For 188.27 Ft; Thn N87*00'04"W For 454.40 Ft Back To Pob, Said Prcl Containing 1.51 Ac, +/-. As Des In Or 4581 Pg 503 Less All Min Rights In S2 Of S2 Of Sw4 Of Sw4
Zoning Description: Res Single
Subdivision Name: None
Elementary School: Chumuckla
Middle/Junior School: CENTRAL
High School: Central

Schedule a tour
Request information