Listings courtesy of Charles Rutenberg Realty of IL as distributed by MLS GRID.
$815,000 $217/sf Earn $16,300
$815,000
Credit Back up to $16,300*
$217.33/sf
Active - Multi Family for sale
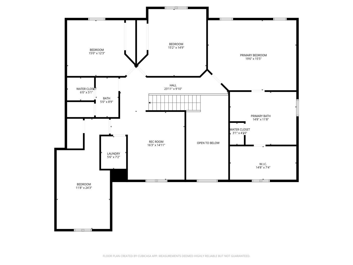
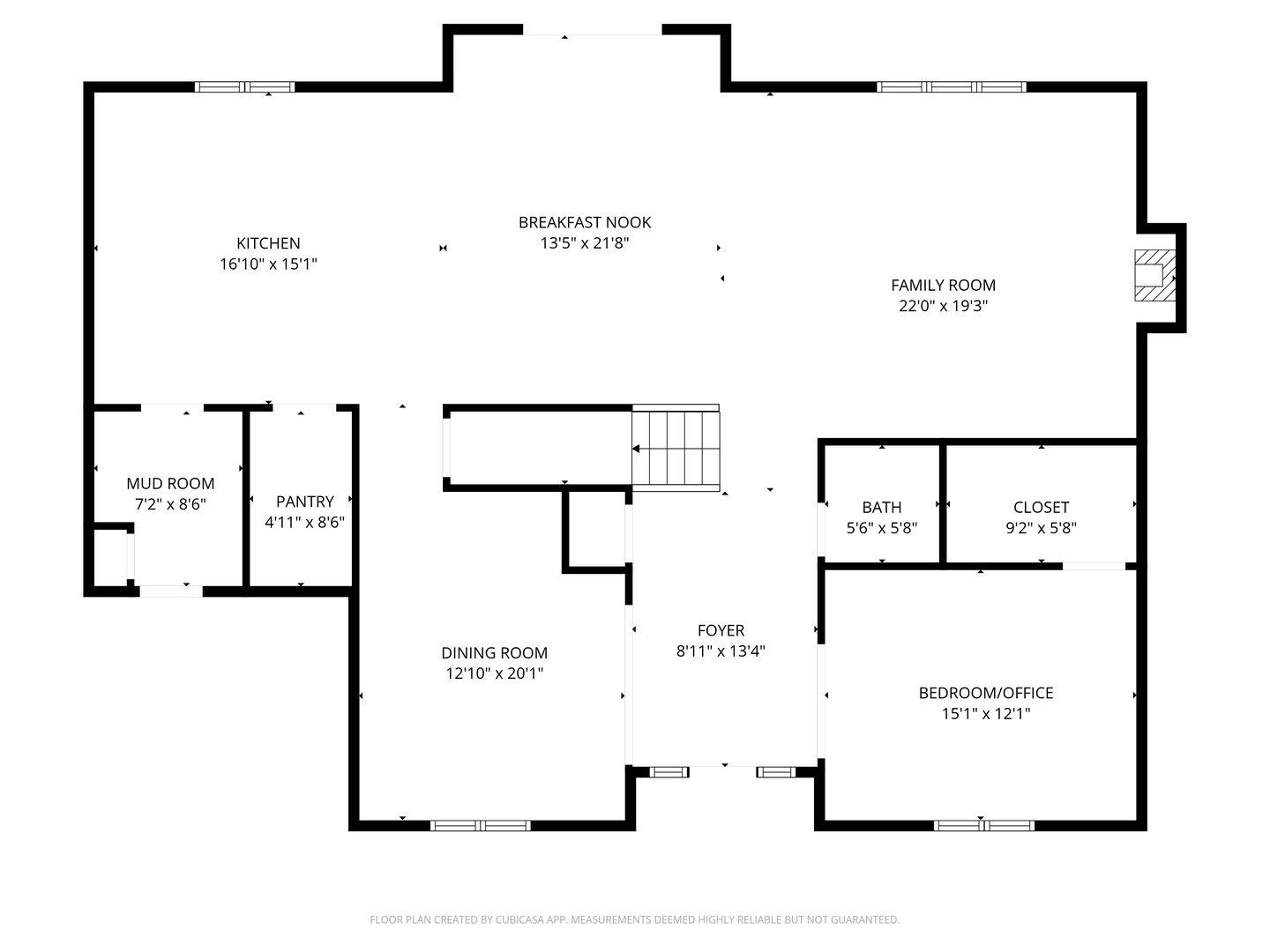
Luxury home in sought after Stone Creek Subdivision. The stunning kitchen features white cabinetry with a black-stained island, quartz backsplash, and premium appliances including a double oven and range hood. Spacious mudroom with lockers and closet, plus a 5x8 walk-in pantry. Elegant panel moldings highlight the family and dining rooms, complemented by a cozy fireplace. Home boasts decorative pediment heads throughout, and a custom oak staircase. First-floor study includes a 9x5 walk-in closet, which can used as the 5th bedroom. Upstairs offers a generously sized recreation room with hardwood flooring and second-floor laundry. The luxurious primary suite features a designer ceiling, master bath with double vanities, private water closet, freestanding tub, separate shower, and a large walk-in closet. Garage equipped with 240 outlet for electric car charging. Full basement awaits your personal touches.
- Listed by: Tosha Simpson-Anderson
- Brokered by: Charles Rutenberg Realty of IL • 630-929-1100
- Source: MRED as distributed by MLS GRID
- MLS Number: 12579933
- MLS Last Updated: Mar 26, 2026 at 06:42pm EDT
* School data provided by National Center for Education Statistics, and GreatSchools. Intended for reference only. The GreatSchools Rating is based on a variety of school quality indicators, including test scores, college readiness, and equity data. To verify enrollment eligibility, contact the school or district directly.
What will my commute be?
Appliances: Double Oven, Microwave, Dishwasher, Refrigerator, Disposal, Cooktop, Oven, Range Hood, Humidifier
Furnished: Unfurnished
Lot Features: Irregular Lot
Other Equipment: Ceiling Fan(S)
Status: Active
Listed Date: 03/08/2026
Days On Market: 28
Lot Size (Acres): 0.37
Lot Size (Square Feet): 16117.2
Association Fee: $575
Architectural Style: Traditional
Garage Spaces: 3
Parking Total: 3
Year Built: 2023
Basement: Unfinished, Bath/Stubbed, Egress Window, Full
Cooling: Central Air
Fireplace Features: Gas Starter, Heatilator
Foundation Details: Concrete Perimeter
Heating: Natural Gas
Interior Features: 1st Floor Bedroom, Bookcases, High Ceilings, Coffered Ceiling(S), Pantry
Roof: Asphalt
Sewer: Public Sewer, Storm Sewer
WaterSource: Public, Community
Parcel Number: 1909353030050000

Schedule a tour
Request information