$889,000 $434/sf Earn $17,780
$889,000
Credit Back up to $17,780*
$433.66/sf
Active - Townhouse for sale
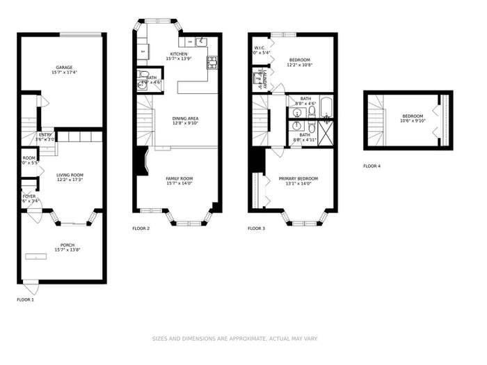
Tastefully renovated and filled with natural light, this 3-bedroom, 2.5-bath townhome is located just steps from Wrightwood Park and within the award-winning Prescott Elementary district. Enjoy an open floor plan with a fully updated kitchen featuring elegant cabinetry, quartz countertops, and Bosch/LG stainless steel appliances. Upstairs offers three spacious bedrooms and two updated baths. The ground level includes a flexible family room and attached 1.5-car garage. Additional updates include new Pella windows , furnace, new lighting throughout, garage flooring, and more. Relax on your private patio and enjoy all that Lincoln Park has to offer — parks, shops, and dining just outside your door.
- MLS Number: 12506067
* School data provided by National Center for Education Statistics, and GreatSchools. Intended for reference only. The GreatSchools Rating is based on a variety of school quality indicators, including test scores, college readiness, and equity data. To verify enrollment eligibility, contact the school or district directly.
What will my commute be?
Status: Active
Listed Date: 10/27/2025
Days On Market: 4
Year Built: 1988
Parcel Number: 14-29-312-044-1008

Schedule a tour
Request information