$365,000  
$365,000
Active - Land for sale
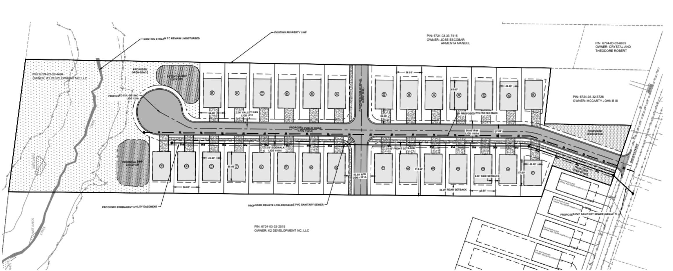
28 approved lots on Brown St, next to new construction which have sold out. Lot's have been approved through rezoning. Lot sizes are approximate 120' x 56' with 40' building pad widths.
Beycome ID: 17024216
- Listed by: Kevin Gioia • (804) 656-5007 • contact@beycome.com
- Brokered by: Beycome Brokerage Realty LLC • (804) 656-5007
- Source: Beycome
- MLS Number: 17024216
- MLS Last Updated: Jan 21, 2026 at 02:55pm EST
* School data provided by National Center for Education Statistics, and GreatSchools. Intended for reference only. The GreatSchools Rating is based on a variety of school quality indicators, including test scores, college readiness, and equity data. To verify enrollment eligibility, contact the school or district directly.
What will my commute be?
Furnished: Unfurnished
Status: Active
Listed Date: 11/11/2024
Days On Market: 436
Lot Size (Acres): 8.46
Lot Size (Square Feet): 0.00019421487603306
Parcel Number: 1134700000022

Schedule a tour
Request information