Listings courtesy of eXp Realty as distributed by MLS GRID.
$275,000 $170/sf Earn $5,500
$275,000
Credit Back up to $5,500*
$170.07/sf
Active - Other for sale
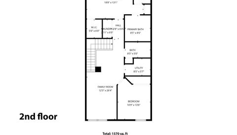
Check out this very clean and updated townhome located in the Club West community. Step into this open concept main level living area with gas burning fireplace, formal dining space a kitchen complimented with stainless steel appliances and bar style seating. Upstairs you'll find two large bedrooms, plus a giant loft space that provides options for flexible use as a kids play area, craft room, or family room. There is even another space for a desk or gaming area. Primary bedroom offers private bathroom with soaker tub and a walk-in shower and TWO walk-in closets! All carpet on upper floor is newer, with fresh paint and updated bathroom floor in primary bath. The Club West Master Association offers a full menu of shared amenities including a clubhouse, party room, fitness center, swimming pool, play area, tennis, pickleball courts, and even a dock for fishing. You will appreciate the prime location, abundance of space, and resort-style amenities this lifestyle offers.
- Brokered by: eXp Realty
- Source: Northstar MLS as distributed by MLS GRID
- MLS Number: 7054669
- MLS Last Updated: Mar 25, 2026 at 08:36pm EDT
* School data provided by National Center for Education Statistics, and GreatSchools. Intended for reference only. The GreatSchools Rating is based on a variety of school quality indicators, including test scores, college readiness, and equity data. To verify enrollment eligibility, contact the school or district directly.
What will my commute be?
Appliances: Dishwasher, Dryer, Exhaust Fan, Microwave, Range, Refrigerator, Stainless Steel Appliances, Washer
Furnished: Unfurnished
Pool Features: Below Ground, Heated, Outdoor
Status: Active
Listed Date: 04/14/2026
Days On Market: 11
Association Name: Association Minnesota
Association Fee: $459
Garage Spaces: 2
Parking Total: 1
Year Built: 2006
Cooling: Central Air
Fireplace Features: Gas
Heating: Forced Air
Roof: Architectural Shingle, Asphalt, Pitched
Sewer: City Sewer/Connected
WaterSource: City Water/Connected
Parcel Number: 173123440155
Subdivision Name: Cic 171 Cottages At Club W

Schedule a tour
Request information