$449,000 $264/sf  
$449,000
$264.12/sf
Active - Multi Family for sale
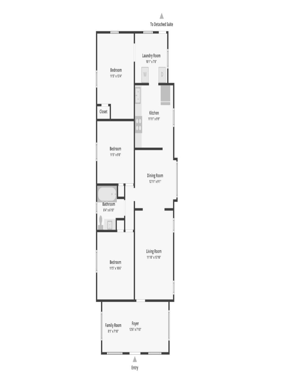
**Income-Generating Duplex in Prime St. Petersburg Location** Units are currently vacant and ready for their new owner. Discover an exceptional investment opportunity at 1743 Yale St S, St. Petersburg, FL 33712. This fully renovated duplex comprises two separate units, offering a total of 5 bedrooms and 2 bathrooms. **Front Unit:** - **Size:** Approximately 1,180 sq. ft. - **Layout:** 3 bedrooms, 1 bathroom, full kitchen, living room, and dining area. - **Features:** Inside laundry with a washer and dryer. **Rear Unit:** - **Size:** Approximately 700 sq. ft. - **Layout:** 2 bedrooms, 1 bathroom, galley kitchen, and living room. **Property Highlights:** - **Renovations:** Completely remodeled in 2021, including a new roof, and new flooring throughout. - **Additional Upgrades:** New asphalt driveway, fully painted exterior, and termite tenting completed in 2021. - **Solar Panels:** The property is equipped with solar panels, will be paid off at signing. - **Parking:** Driveway and street parking available. **Location:** Conveniently situated near downtown St. Petersburg, offering easy access to restaurants, shops, and entertainment venues. Proximity to world-class beaches such as St. Pete Beach and Clearwater Beach, as well as Tampa and St. Pete-Clearwater International Airports, enhances its appeal. For Investors seeking a opportunity in a desirable location. Don't miss out on this chance to own a income-producing duplex in the heart of St. Petersburg.
Beycome ID: 17033672
- Listed by: Steven Koleno • (804) 656-5007 • contact@beycome.com
- Brokered by: Beycome of Florida LLC • (804) 656-5007
- Source: Beycome
- MLS Number: O6280443
- MLS Last Updated: Mar 10, 2026 at 11:15pm EDT
* School data provided by National Center for Education Statistics, and GreatSchools. Intended for reference only. The GreatSchools Rating is based on a variety of school quality indicators, including test scores, college readiness, and equity data. To verify enrollment eligibility, contact the school or district directly.
What will my commute be?
Furnished: Unfurnished
Status: Active
Listed Date: 02/11/2025
Days On Market: 393
Lot Size (Acres): 0.14
Lot Size (Square Feet): 3.099173553719E-6
Year Built: 1925
Parcel Number: 26-31-16-09090-001-0200

Schedule a tour
Request information