Listings courtesy of REDFIN CORPORATION as distributed by MLS GRID.
$329,000 $473/sf Earn $6,580
$329,000
Credit Back up to $6,580*
$472.70/sf
Active - Single Family Residence for sale
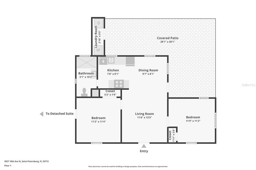
One or more photo(s) has been virtually staged. This fantastic property offers classic charm and modern peace of mind in a prime St. Petersburg location. The two-bedroom, one-bath main residence shines with original wood flooring, a fresh interior and exterior paint palette, and updated windows throughout. The heart of the home is highlighted by a modernized kitchen with new cabinetry and appliances, as well as a bathroom featuring a stylish new vanity. Transitioning outside, you’ll discover a private, tropical oasis anchored by an expansive backyard and a saltwater pool installed in 2021, all kept lush by a dedicated well-irrigation system. Tucked away for maximum privacy is a versatile detached STUDIO, providing a perfect creative retreat or home office complete with a bedroom, half-bath, and a private outdoor shower. An attached carport and an automatic gate leading to rear alley access round out the list of features. Situated less than half a block from the scenic Jorgensen Lake and Park and within easy walking distance of the St. Petersburg Library, this home offers an unparalleled lifestyle of comfort and recreation.
- Listed by: Sylvia Haddad • SYLVIA.HADDAD@REDFIN.COM
- Brokered by: REDFIN CORPORATION • 617-458-2883
- Source: Stellar MLS as distributed by MLS GRID
- MLS Number: TB8473339
- MLS Last Updated: Mar 27, 2026 at 05:44am EDT
* School data provided by National Center for Education Statistics, and GreatSchools. Intended for reference only. The GreatSchools Rating is based on a variety of school quality indicators, including test scores, college readiness, and equity data. To verify enrollment eligibility, contact the school or district directly.
What will my commute be?
Appliances: Dryer, Electric Water Heater, Exhaust Fan, Range, Refrigerator, Washer
Fencing: Fencing Fenced
Furnished: Unfurnished
Laundry Features: Inside
Lot Features: City Lot, Landscaped, Near Public Transit
Number Of Lots: 1
Pool Features: Pool In Ground, Pool Salt Water
Status: Active
Listed Date: 02/08/2026
Days On Market: 108
Lot Size (Square Feet): 5715
View: View Garden, View Pool, View Trees/Woods
Rent Includes: []
Tenant Pays: []
Carport Spaces: 1
Parking Total: 1
Year Built: 1955
Construction Materials: Wood Frame
Cooling: Central Air, Mini-Split Unit(S)
Exterior Features: Private Entrance, Private Mailbox, Private Yard
Flooring: Floor Tile, Floor Hardwood
Foundation Details: Foundation Crawlspace
Heating: Electric
Interior Features: Ceiling Fan(S), Eating Space In Kitchen, Kitchen/Family Room Combo, Open Floorplan, Primary Bedroom Main Floor, Stone Counters, Thermostat, Walk-In Closet(S)
Other Structures: Workshop
Roof: Roof Shingle
Electric: []
Sewer: Sewer Public Sewer
Utilities: Electricity Connected, Public, Sewer Connected, Water Connected
WaterSource: Water Source Public
Parcel Number: 153116182880200130
Tax Legal Description: Corson'S Sub Blk 20, Lot 13
Subdivision Name: Corsons Sub
MLS Area Major: 33713 - St Pete
Elementary School: Mount Vernon Elementary-PN
Middle/Junior School: Tyrone Middle-PN
High School: St. Petersburg High-PN

Schedule a tour
Request information