Listings courtesy of Property Peddler, Inc as distributed by MLS GRID.
$250,000 Earn $5,000
$250,000
Credit Back up to $5,000*
Active - Other for sale
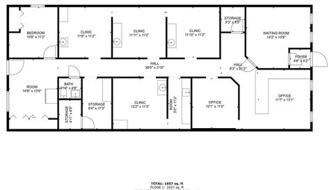
Take advantage of this fully operational dental practice along with the real estate. This building boasts four spacious clinic rooms, a welcoming reception area, and state-of-the-art dental equipment, including dental chairs, advanced imaging technology, sterilization units, and more. This establishment offers high visibility and easy access, ensuring a steady flow of clients. The practice currently operates 24 hours per week and is not only servicing existing patients but is also accepting new ones. Whether you are a recent dental school graduate looking to start your career or an established practitioner seeking to expand your business, this is the perfect setting to thrive. The seller is committed to ensuring a smooth transition and is willing to provide assistance throughout the process. Don’t miss out on this exceptional chance to own a successful dental practice. Contact us today for more information and to schedule a viewing.
- Brokered by: Property Peddler, Inc • 4732500
- Source: Maris MLS as distributed by MLS GRID
- MLS Number: 24067809
- MLS Last Updated: Apr 24, 2026 at 11:35am EDT
* School data provided by National Center for Education Statistics, and GreatSchools. Intended for reference only. The GreatSchools Rating is based on a variety of school quality indicators, including test scores, college readiness, and equity data. To verify enrollment eligibility, contact the school or district directly.
What will my commute be?
Current Use: One Story, Medical/Dental, Office
Furnished: Unfurnished
Status: Active
Listed Date: 04/11/2025
Days On Market: 380
Lot Size (Acres): 0.37
Lot Size (Square Feet): 16117
Parking Total: 1
Year Built: 1960
Cooling: Electric
Heating: Forced Air
Sewer: Public Sewer
Utilities: Electricity Available, Water Available, Sewer Available
WaterSource: Public
Zoning: Commercial
Subdivision Name: Marissa

Schedule a tour
Request information